Questo sito utilizza cookie di profilazione, anche di terze parti, per fornirti servizi e pubblicità in linea con le tue preferenze. Se chiudi questo banner o prosegui con la navigazione ne accetti l'utilizzo. Per maggiori informazioni su come modificare il consenso e le impostazioni dei browser clicca qui

Annunci immobiliari, vendita case e appartamenti Capannori

144 annunci gratuiti (0,000s.)
vendita villa Capannori

vendita villa Capannori

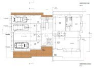
N142P - Capannori. Villa singola con giardino e garage. Questa elegante villa singola, distribuita su più livelli sfalsati, è immersa in un ampio giardino privato, che la rende libera su quattro lati, garantendo massima privacy e tranquillità. L’ingresso principale si apre su un accogliente salotto, caratterizzato da luminosità e spazi generosi, che conduce a una cucina abitabile con balcone. Un secondo salotto, anch’esso ben luminoso, offre ulteriori spazi di soggiorno e relax. Attraverso alcuni gradini in legno si accede alla zona notte, composta da tre camere da letto. Due di queste sono matrimoniali: una con balcone e l’altra con la possibilità di realizzare un bagno privato, per una maggiore comodità. La terza camera, singola, è ideale per un eventuale studio o cameretta. A completare il piano notte, un bagno ben distribuito. La soffitta, accessibile dalla zona notte tramite scala retrattile offre spazi aggiuntivi, utilizzabili come ripostiglio o per un eventuale studio o zona hobby. Al piano terra, la villa offre una sezione composta da un salotto con camino, una camera da letto, un bagno e un pratico ripostiglio. Questa parte della casa si presta perfettamente a essere utilizzata come appartamento per ospiti o per un familiare, mantenendo però la propria indipendenza. Esternamente, la proprietà è dotata di due ampi garage, che offrono spazio sufficiente per più autovetture e per il deposito di attrezzature. Inoltre, un ulteriore ripostiglio nel giardino consente di avere sempre a portata di mano gli oggetti più utilizzati. Il giardino che circonda la villa offre ampie zone verdi e la possibilità di godere di momenti all’aperto in totale privacy, mentre la posizione sfalsata e la disposizione funzionale dei vari livelli garantiscono una vita familiare confortevole e ben organizzata. In sintesi, questa villa rappresenta una rara opportunità di vivere in una residenza spaziosa, con soluzioni personalizzabili e indipendenti, perfetta per famiglie che desiderano un ambiente tranquillo, ma con tutte le comodità e i servizi a portata di mano. Classe energetica: G...

09 novembre 2025

Villa

Capannori

480.000€
5 Locali
250mq