Vendita Ufficio Prato
Pubblicato il 23 settembre 2025 alle ore 09:33









Se stai cercando un'opportunità interessante in una delle zone più centrali di Prato, questo ufficio in Piazza San Marco è la soluzione ideale per te!
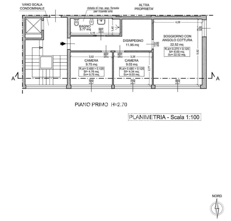
Situato al primo piano di un elegante complesso condominiale, con ascensore, l'immobile si estende su una superficie di circa 65 mq, suddivisi in tre stanze, ideali per uffici o, con qualche piccola modifica, anche per trasformarlo in una civile abitazione. Le due stanze più piccole, da 9 mq ciascuna, possono essere utilizzate per uffici privati o piccole postazioni di lavoro. La terza stanza, situata in fondo al corridoio, è quella più grande e spaziosa, perfetta per una zona reception o come sala riunioni.
A completare la disposizione c'è un piccolo bagno, utile e funzionale.
Inoltre, l'immobile offre un'ottima opportunità di investimento grazie alla possibilità di trasformarlo in un'abitazione. Il progetto di trasformazione prevede la realizzazione di due camere singole e un soggiorno con angolo cottura, offrendo così una soluzione abitativa perfetta per giovani coppie o professionisti. Il progetto è già disponibile, e le spese per la trasformazione sono a carico dell'acquirente.
Posizione strategica, accesso facilitato e la possibilità di personalizzare l'immobile lo rendono un'occasione unica da non perdere!
Contattaci per maggiori informazioni o per organizzare una visita.
N.B: l'indirizzo del presente annuncio è solo indicativo della zona, non rappresenta l'ubicazione esatta dell' immobile proposto.
PavonImmobiliare
A differenza di tutte le altre agenzie noi non ci limitiamo solo a mostrarti gli immobili che abbiamo nel nostro portafoglio, ma ci impegniamo a cercarti l'immobile ideale, per farti risparmiare tempo e ridurti lo stress.
Per questo motivo, prima di farti vedere l'immobile, ti chiederemo di fare una breve 'intervista' telefonica o in agenzia, per capire insieme se le tue esigenze corrispondono a questa soluzione.
Così eviterai inutili giri a vuoto se l'immobile non risponde alle tue esigenze, in alternativa potremmo proporti altre soluzioni.
CLASSE ENERGETICA: G 175 kWh/m2 a
- Invia ad un amico
- Segnala abuso