Vendita Ufficio Modena
Pubblicato il 20 febbraio 2026 alle ore 09:49
















RIF. ANNUNCIO: VY365
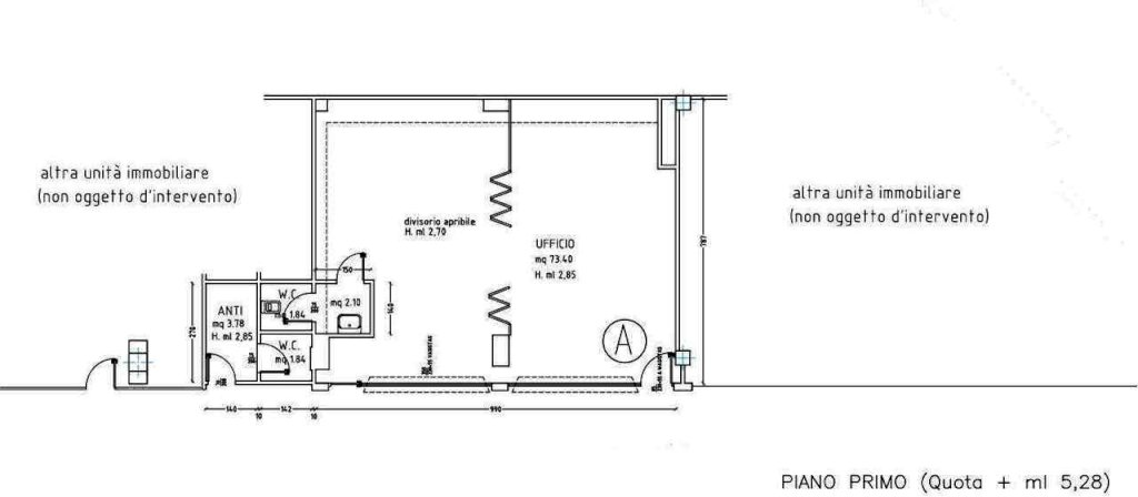
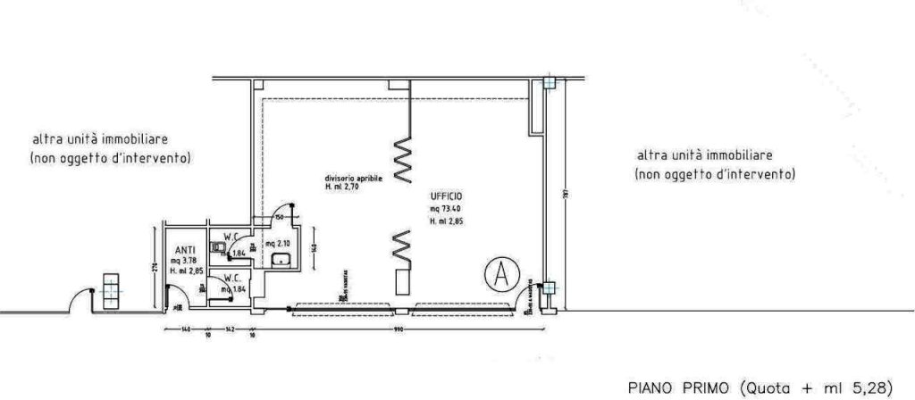
Proponiamo in vendita UFFICIO con INGRESSO INDIPENDENTE, doppio Accesso, da sistemare e da creare ex-novo invece l'impiantistica caldo/freddo. Si compone di un openspace oltre che di antibagno e bagno nuovi. Facile raggiungimento tramite scale esterne, piano PRIMO con affaccio riservato. Già libero e disponibile alla vendita. Ottimo anche da investimento per metterlo a reddito.
Il Direzionale 70 si presenta come uno dei più significativi interventi realizzati a seguito delle politiche urbane degli anni 60 per dare spazio al terziario dei servizi in piena espansione; si colloca in una posizione favorevole e comoda alla viabilità, nonchè ricca di parcheggi e si compone di tre edifici con servizi commerciali che ne creano una forma immediatamente riconoscibile e dal grande design.
Per info:
059 2929690 STUDIO
realcasamodena@gmail.com
realcasamodena.it
CLASSE ENERGETICA: G
- Invia ad un amico
- Segnala abuso