Vendita Ufficio Modena
Pubblicato il 25 ottobre 2025 alle ore 09:17


















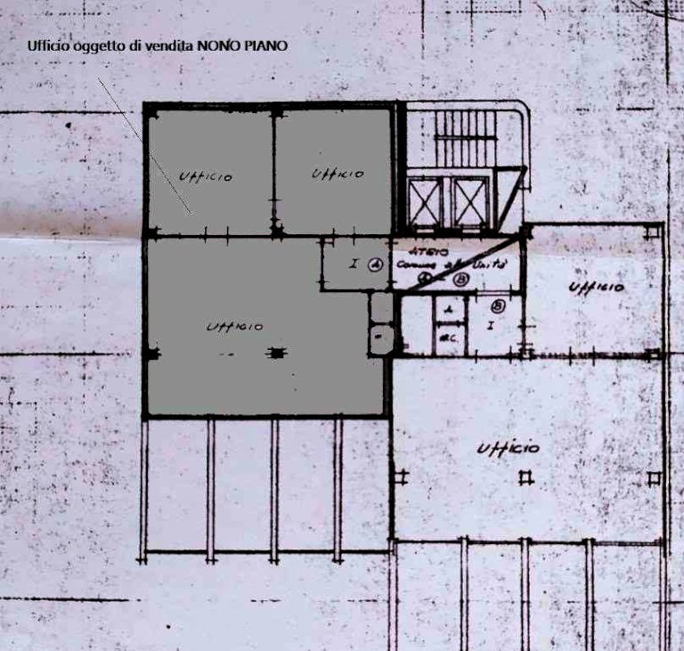
Modena, RIF. ANNUNCIO VG313
SAN FAUSTINO - Presso Direzionale di Modena, trattiamo la vendita di UFFICI di varie dimensioni da sistemare negli interni. Il complesso, collocato in una posizione strategica, comodo ai principali assi viari della provincia, ha il pregio di essere immediatamente riconoscibile e facile da raggiungere:
L'immobile qui proposto, facilmente raggiungibile, ha inoltre due grandi particolarità, la vista magnifica panoramica e la grande luminosità; è composto da ingresso, 3 grandi stanze, sala ced (pareti in cartongesso) oltre ad antibagno e bagno. L' Ufficio è già staccato dalla centrale termica quindi ha basse spese condominiali e utenze AUTONOME di riscaldamento/raffrescamento.
Disponibili posti auto riservati nella trattativa. La proprietà prende in considerazione la formula di acquisto con riserva di proprietà. RICHIESTA EURO 64.000,00.
X info:
Giovanni: 335 591 1876
realcasamodena@gmail.com
realcasamodena.it
CLASSE ENERGETICA: G
- Invia ad un amico
- Segnala abuso