Vendita Ufficio Capannori
Pubblicato il 18 dicembre 2025 alle ore 10:02

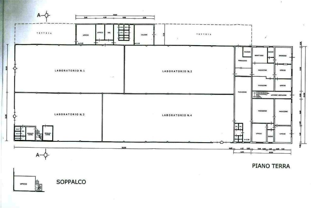
Capannone artigianale, per un totale di 1231 mq e altezza m.5.00, suddiviso in quattro vani ad uso laboratorio con servizi e uffici per un totale di 230 mq. Corredato da due appartamenti al primo piano composti da ingressi indipendenti, soggiorno, cucina abitabile, tre camere e bagno, tensostrutture e due tettoie. Il capannone รจ in buono stato di manutenzione.
Ci contatti per sapere il prezzo richiesto. sist3ma.it@gmail.com
CLASSE ENERGETICA: G 290 kWh/m2 a
- Invia ad un amico
- Segnala abuso