vendita terratetto Vecchiano
Pubblicato il 19 dicembre 2025 alle ore 23:16



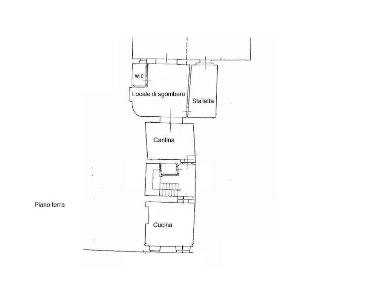
Vecchiano - Filettole: nel centro del paese all'interno di una corte, proponiamo un terratetto completamente da ristrutturare e personalizzare di circa 180 mq con una piccola resede sul fronte della casa di circa 20 mq. Prezzo interessante!!!!
- Invia ad un amico
- Segnala abuso