vendita terratetto Pisa
Pubblicato il 12 novembre 2025 alle ore 23:02








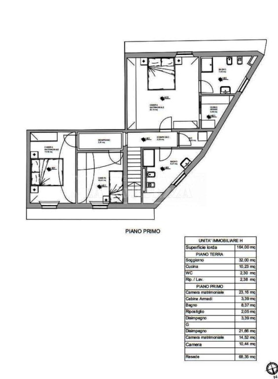
SAN MICHELE: (unità H) riqualificazione di terratetto in posizione angolare, disposto su due livelli e corredato di giardino con accesso carrabile e pedonale, posto auto e garage. Il piano terra è composto da una spaziosa zona living open space, una cucina con soffitti a volte, un ripostiglio ed un bagno di servizio; il piano primo, con accesso tramite scala interna, è suddiviso in disimpegno notte, bagno principale, ripostiglio/lavanderia, tre camere matrimoniali, di cui una con cabina armadi e bagno dedicato. La riqualificazione sarà eseguita con le più moderne tecniche innovative per consentire all’immobile il rispetto delle norme sismiche, termiche ed acustiche. SGRAVI FISCALI SISMA BONUS PARI AD € 96 MILA IN 10 ANNI.
- Invia ad un amico
- Segnala abuso