vendita terratetto Lucca
Pubblicato il 16 novembre 2025 alle ore 23:05






















VINCHIANA - GRANDE TERRATETTO DA AMMODERNARE
PROPOSTA CON INCARICO DI MEDIAZIONE FORMALMENTE ASSEGNATO ALL’AGENZIA.
Nella zona di Vinchiana, in corte con altre abitazioni, proponiamo in vendita questo terratetto finale da ammodernare ma comunque abitabile con poche opere.
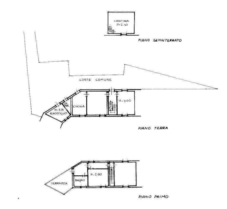
L'immobile è composto da, ingresso su zona giorno, cucina abitabile ed ulteriore sala al piano terra e da due camere matrimoniali, bagno e terrazza al piano primo ed è inoltre corredato da cantina con accesso dall'interno e 2 locali a ripostiglio con accesso dall'esterno.
'immobile è già dotato di allaccio al gas metano per il riscaldamento, allaccio all’acquedotto per l’approvvigionamento idrico, fossa biologica per lo smaltimento dei liquami ed infissi in legno. Si presenta in normali condizioni di manutenzione ma necessita di lavori di riammodernamento - POSSIBILITA' DI ABITARLO FIN DA SUBITO -
Per richiedere ulteriori informazioni o concordare una visita chiamateci al numero 339 7996540 o inviate una email a info@immobiliareilcastellaccio.it
PROPOSTA CON INCARICO DI MEDIAZIONE FORMALMENTE ASSEGNATO ALL’AGENZIA
- Invia ad un amico
- Segnala abuso