vendita terratetto Empoli
Pubblicato il 02 gennaio 2026 alle ore 00:47








IN VENDITA A EMPOLI
Località Santa Maria
TERRATETTO DA RISTRUTTURARE - 5 vani con giardino
Proponiamo in vendita un immobile situato a Santa Maria, in una zona residenziale interna molto tranquilla.
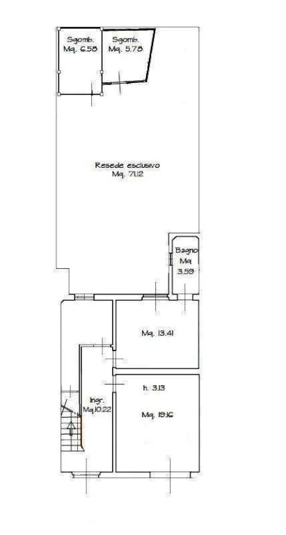
Il terratetto è disposto su due livelli ed è composta al piano terra da ingresso nel soggiorno, cucina, bagno e accesso al giardino tergale di circa 75 mq oltre a due locali di deposito;
al piano primo ci sono due camere da letto matrimoniali, un balcone oltre ad uno studio/cameretta oltre al bagno
5 vani, distribuiti in modo funzionale
2/3 camere da letto;
2 bagni
ABITAZIONE 100 MQ
CANTINA - TAVERNA 12 MQ
GIARDINO 74 MQ
L'immobile è da ristrutturare.
Prezzo richiesto: € 200.000
L'indirizzo riportato è indicativo e non corrisponde alla reale ubicazione dell'immobile.
Maggiori informazioni verranno fornite telefonicamente.
Etica Immobiliare di Riccardo Raugei
Via Emilio Bardini, 48 – Empoli (FI)
Telefono e whatsapp
Non una semplice agenzia immobiliare ma uno studio professionale che può supportarti in ogni fase della compravendita:
Assistenza per mutui e pratiche finanziarie
Supporto tecnico e burocratico
Consulenza per ristrutturazioni e valorizzazione dell’immobile
Collaborazione con professionisti qualificati del territorio
? Scopri il reale valore del tuo immobile con una valutazione professionale e senza impegno:
Per maggiori informazioni o per richiedere una valutazione gratuita: 3289442245
- Invia ad un amico
- Segnala abuso