vendita terratetto Cascina
Pubblicato il 29 gennaio 2026 alle ore 23:17
























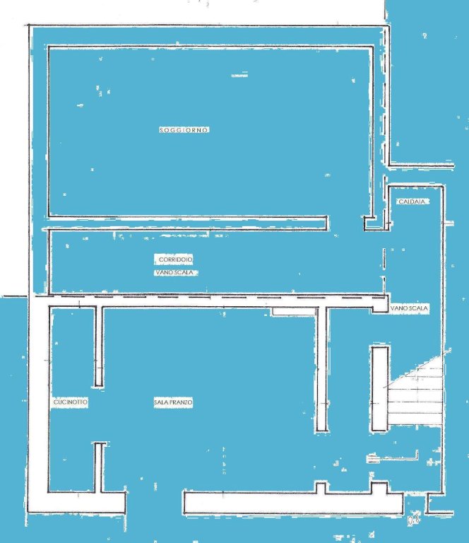
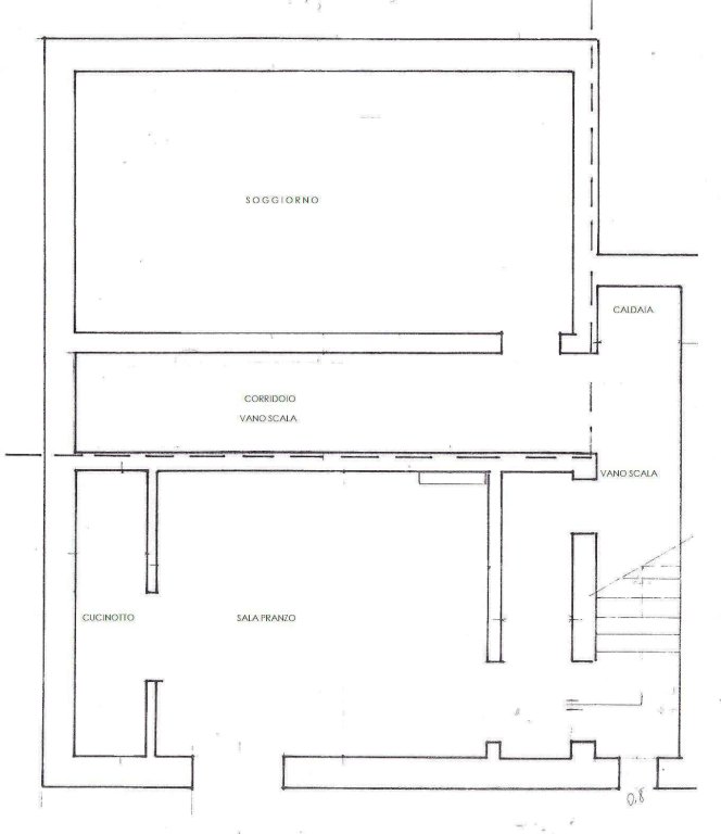
San Prospero Navacchio - Terratetto d'angolo, da ristrutturare, posto su due livelli per circa 140 mq, e a pochi metri dalla casa il giardino con sovrastante garage e locali pluriuso. La casa si compone al piano terra da soggiorno, disimpegno, cucinotto sala pranzo, bagno, e vari ripostigli, al piano superiore, disimpegno notte, bagno, e 4 camere da letto. Volendo è possibile realizzare anche due appartamenti. I soffitti sono con volte a crociera. T.A. Al di là della corte tutto recintato troviamo il giardino con grande resede pavimentato che può ospitare 3/4 auto oltre a vari annessi in muratura uso garage cantine. Giardino di circa 150 mq. APE G - Rif. T58 RICH 150.000 euro ---Dati ritenuti corretti ma non contrattuali---
- Invia ad un amico
- Segnala abuso