vendita terratetto Cascina
Pubblicato il 25 novembre 2025 alle ore 23:16





















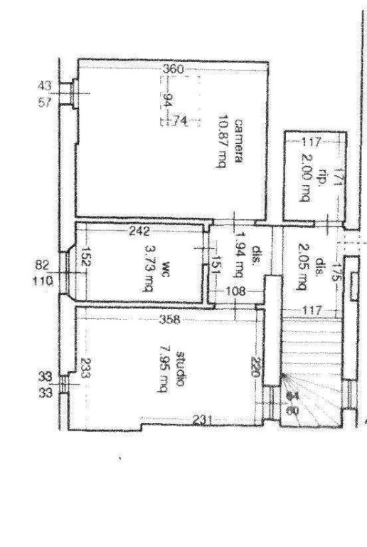
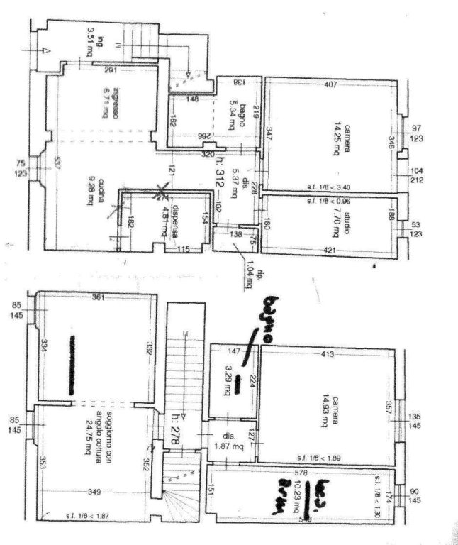
Agenzia Immobiliare Walk propone in vendita a Cascina Terratetto centrale. L'immobile attualmente è stato suddiviso in due appartamenti, di diversa metratura, con ingresso indipendente. Il primo appartamento, posto al piano terra è così composto; ingresso in zona giorno con cucina abitabile ed il bagno servito di doccia. La zona notte è definita da due camere da letto, di cui una matrimoniale ed una camerina. Il secondo appartamento si sviluppa su due livelli ed è così definito; ingresso in luminosa zona giorno open-space, servita di comodo bagnetto di servizio, ed ulteriori due vani da poter utilizzare in base alle proprie esigenze. Al piano superiore troviamo un locale mansardato, con altezze vivibili, dove è stato ricavato il reparto notte con due camere da letto, di cui una camerina ed una di medie dimensioni ed infine un ulteriore bagno finestrato con doccia. Ottimo investimento; adatto per una soluzione genitori-figli oppure per ricavare tre distinte unità immobiliari da rivendere separatamente. L'appartamento al piano terra si presenta da riammodernare, mentre l'appartamento al primo e al secondo piano si presenta in perfette condizioni ed è quindi abitabile da subito.
- Invia ad un amico
- Segnala abuso