Vendita Stabile / Palazzo Figline e Incisa Valdarno
Pubblicato il 30 gennaio 2026 alle ore 21:05






















NUOVA PROPOSTA
IMMOBILE LIBERO
Nel cuore della campagna toscana, in posizione panoramica e riservata, proponiamo un affascinante complesso immobiliare storico denominato Fattoria di San Leo, ubicato nel comune di Figline e Incisa Valdarno (FI) composto da un insieme di edifici residenziali, piscina pertinenziale e terreni agricoli circostanti.
Il complesso si sviluppa su un ampio contesto rurale e comprende numerosi edifici di epoche diverse, in gran parte in buone condizioni di manutenzione, inseriti in un contesto di grande pregio paesaggistico.
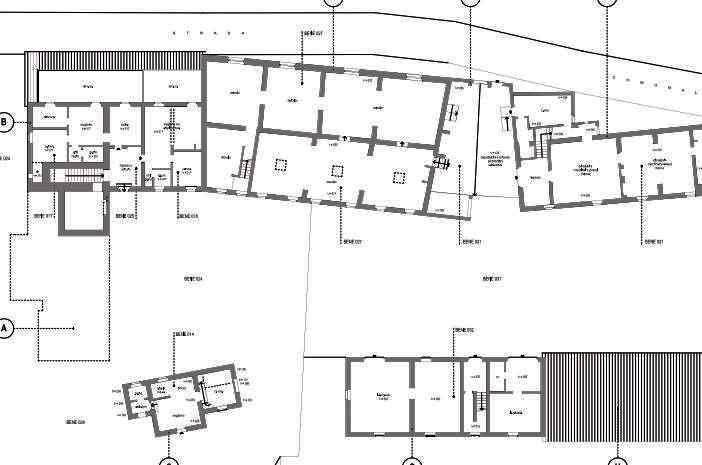
All'interno del nucleo principale della fattoria sono presenti nove appartamenti indipendenti, attualmente destinati ad uso turistico-ricettivo, ideali per attività di affitti brevi, agriturismo o residenza privata.
Gli appartamenti presentano le seguenti caratteristiche:
-Appartamento di 58 mq composto da soggiorno con angolo cottura, camera soppalcata, antibagno e bagno.
-Appartamento di 90 mq composto da soggiorno con angolo cottura, camera matrimoniale con bagno e ripostiglio.
-Appartamento di 125 mq composto da soggiorno, cucina con accesso autonomo, due camere, bagno, due ripostigli, sottoscala e locale di servizio.
-Appartamento di 82 mq composto da cucina, soggiorno, due camere, bagno con antibagno e terrazza panoramica.
-Appartamento di 73 mq composto da soggiorno con angolo cottura, camera da letto, bagno con antibagno e terrazza.
-Appartamento di 66 mq composto da soggiorno con angolo cottura, camera matrimoniale e bagno.
-Appartamento di 67 mq composto da soggiorno, angolo cottura, camera da letto e bagno soppalcato.
-Appartamento di 113 mq composto da soggiorno con angolo cottura, due camere da letto, due bagni, ripostiglio e ampia terrazza.
-Appartamento di 145 mq, disposto su tre livelli, composto da soggiorno con angolo cottura, due camere da letto, due bagni, ripostiglio e soppalco.
Per te la possibilità di avere un preventivo per il mutuo a condizioni vantaggiose con i nostri partner.
Ulteriori dettagli, foto degli interni, planimetrie e altre info, se disponibili, saranno consultabili previo appuntamento nella sede di FIRENZE con ALESSIO che inoltre ti informerà sulle possibilità di aggiudicarti questo affare.
L'immobile pubblicato al momento è sottoposto a procedura di vendita legale; Gescom srl è specializzata nella ricerca e pianificazione di investimenti immobiliari secondo innovative strategie di acquisto. Contattaci subito potrai valutare assieme a un nostro tecnico canali distinti di acquisto dell'immobile, procedura di vendita diretta senza ricorrere all'asta (d.lgs. 149/2022) e ancora stralcio immobiliare. Le informazioni sopra riportate non sostituiscono l'avviso pubblicato dal Tribunale competente ne' l'integrale gestione da parte del delegato designato. Il testo e le specifiche indicate nella presente pagina sono generate automaticamente attraverso l'utilizzo di software e/o da A. I., Gescom srl invita a verificare le formazioni e i materiali multimediali sui canali ufficiali, declinando fin d'ora ogni responsabilità su eventuali errori o incongruenze.
Gescom Italia srl leader negli stralci immobiliari e nella consulenza tecnico legale, non si occupa di attività di intermediazione imm. di cui alla legge 39/89.
Cl. energ. da verificare.
Le foto pubblicate nel presente annuncio sono indicative e non esaustive della tipologia, qualità, consistenza e indicazione geografica dell'immobile.
CLASSE ENERGETICA: A
- Invia ad un amico
- Segnala abuso