vendita stabile/palazzo Casciana Terme Lari
Pubblicato il 09 gennaio 2026 alle ore 23:18











BORGO DI CEVOLI - CASCIANA TERME LARI
Nel suggestivo Borgo di Cevoli, in posizione collinare panoramica, proponiamo in vendita un palazzo storico di grande fascino, completamente ristrutturato al grezzo e pronto per essere personalizzato nelle finiture interne.
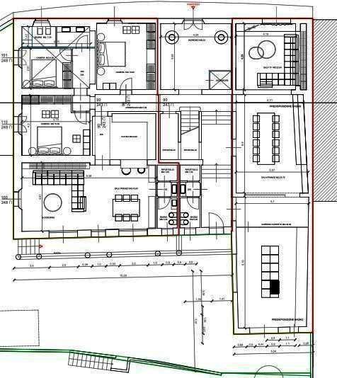
L’edificio, disposto su più livelli, è composto da sette appartamenti indipendenti: due con ingresso autonomo e giardino privato, e cinque accessibili da un vano scala condominiale servito da ascensore. Alcune unità – due al primo piano e una al secondo – dispongono di ampie terrazze abitabili, dalle quali si gode una splendida vista sulle colline toscane.
Il restauro, eseguito con particolare attenzione alla conservazione delle caratteristiche architettoniche originali, ha valorizzato materiali e colori tipici dell’epoca, restituendo al palazzo l’eleganza e l’autenticità che lo contraddistinguono. Gli interni, ancora da completare, offrono la possibilità di personalizzare pavimenti e rivestimenti, creando ambienti unici e in armonia con il gusto di chi vi abiterà.
All’esterno, la proprietà comprende un’area destinata a parcheggio privato con sette posti auto e due locali ad uso magazzino, oltre a una zona verde ideale per momenti di relax all’aperto.
La posizione è strategica: immersa nella quiete di un borgo autentico, ma a pochi minuti dai servizi e ben collegata alle principali città d’arte della Toscana – Pisa (25 km, Aeroporto), Volterra (30 km), Livorno (30 km) e Firenze (65 km).
Questa residenza storica rappresenta una soluzione ideale per più nuclei familiari o un’eccellente opportunità d’investimento per chi desidera avviare un’attività turistico-ricettiva con affitti brevi.
È possibile acquistare l’immobile anche completamente ultimato e pronto per essere abitato.
- Invia ad un amico
- Segnala abuso