Vendita Negozio Vicenza
Pubblicato il 17 marzo 2026 alle ore 09:19
















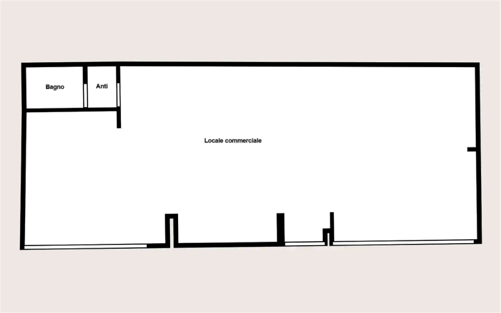
Locale commerciale al grezzo avanzato con posto auto coperto entrambi situati al piano interrato del complesso situato a Vicenza (VI) in viale Francesco Crispi, completo di servizio igienico e anti bagno.
22REB è a disposizione per valutare come la nostra esperienza potrà favorirti nel realizzare il tuo miglior investimento.
L'immobile è oggetto di vendita giudiziaria.
22REB non si occupa di attività di intermediazione imm. di cui alla legge 39/89. Per motivi di privacy la foto dell'immobile/terreno è indicativa ma non esaustiva.
CLASSE ENERGETICA: In fase di valutazione (Classe Energetica in fase di richiesta)
- Invia ad un amico
- Segnala abuso