Questo sito utilizza cookie di profilazione, anche di terze parti, per fornirti servizi e pubblicità in linea con le tue preferenze. Se chiudi questo banner o prosegui con la navigazione ne accetti l'utilizzo. Per maggiori informazioni su come modificare il consenso e le impostazioni dei browser clicca qui

vendita negozio Carrara

Pubblicato il 03 dicembre 2025 alle ore 23:04

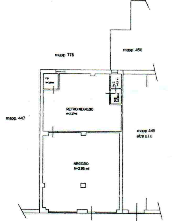
?Marina di Carrara – In prossimità della piazza principale, proponiamo in vendita fondo commerciale di 96 mq attualmente adibito a negozio di alimentari.

L’immobile è suddiviso in due vani:
- un locale anteriore destinato all’esposizione dei prodotti e al servizio al bancone;
- un locale posteriore adibito a deposito merci, completo di cucina, due celle frigorifere, angolo ufficio e bagno con antibagno.

Gli impianti sono funzionanti e attualmente in uso.
? Classe energetica: F - kWh/m2anno 125,73
? Prezzo di vendita del fondo: €220.000
? Possibilità di acquisto con l'attività commerciale compresa: €290.000 complessivi

  • Invia ad un amico
  • Segnala abuso