Vendita Negozio Capannori
Pubblicato il 27 febbraio 2026 alle ore 22:01

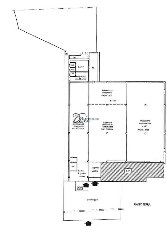
Nelle immediate vicinanze del Viale Europa, fondo ad uso commerciale al piano terra di circa 560 mq utili e corredato da ampio piazzale ad uso espositivo e per posti auto. Le attuali divisioni interne sono realizzate in cartongesso e per questo è possibile modificare la distribuzione interna degli spazi. Possibilità di acquistare anche solo una porzione del fondo o di affitto. Prezzo trattabile.
PER VEDERE LE NOSTRE OFFERTE AGGIORNATE IN TEMPO REALE VISITATE IL NOSTRO SITO INTERNET: www.deimmobiliare.com
SEGUICI ANCHE SULLA NOSTRA PAGINA FACEBOOK Dei Immobiliare
D E I I M M O B I L I A R E - Via Pesciatina 173 Lunata (LU) TEL UFFICIO: 0583.920498 CELL. 329.3166782 - EMAIL: studioimdei@gmail.com
SELEZIONIAMO CON CURA GLI IMMOBILI PIU' INTERESSANTI, NELLE VARIE ZONE DELLA PROVINCIA DI LUCCA.
NON ESITATE A CONTATTARCI PER RICHIESTE E INFORMAZIONI AGGIUNTIVE.
CLASSE ENERGETICA: G 295,36 kWh/m3 a
- Invia ad un amico
- Segnala abuso