Vendita Negozio Bisuschio
Pubblicato il 24 febbraio 2026 alle ore 21:16














NUOVA PROPOSTA
IMMOBILE DISPONIBILE
L'immobile si trova nel comune di Bisuschio (VA) in via degli Alpini.
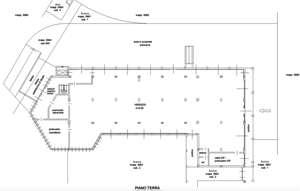
Trattasi di un immobile a destinazione commerciale/negozio disposto su due livelli della superficie commerciale di 1.1218,60 mq.
Al piano terra si trova l'intera area di vendita, nella parte posteriore dell'area a negozio, vengono rilevate le stanze di preparazione dei salumi, della
macelleria e la zona di carico e carico della merce.
Il collegamento con il piano interrato avviene tramite una scala interna ed è presente da un blocco spogliatoi con servizi igienici divisi per sesso.
La proprietà si espande anche in un ampio locale adibito a magazzino oltre che a vari disimpegni ed ad un locale centrale termica.
Situato in una posizione strategica e ben collegata.
Per te la possibilità di avere un preventivo per il mutuo a condizioni vantaggiose con i nostri partner.
Ulteriori dettagli, foto degli interni, planimetrie e altre info, se disponibili, saranno consultabili previo appuntamento nella sede di COMO con LAURA che inoltre ti informerà sulle possibilità di aggiudicarti questo affare.
L'immobile pubblicato al momento è sottoposto a procedura di vendita legale; Gescom srl è specializzata nella ricerca e pianificazione di investimenti immobiliari secondo innovative strategie di acquisto. Contattaci subito potrai valutare assieme a un nostro tecnico canali distinti di acquisto dell'immobile, procedura di vendita diretta senza ricorrere all'asta (d.lgs. 149/2022) e ancora stralcio immobiliare. Le informazioni sopra riportate non sostituiscono l'avviso pubblicato dal Tribunale competente ne' l'integrale gestione da parte del delegato designato. Il testo e le specifiche indicate nella presente pagina sono generate automaticamente attraverso l'utilizzo di software e/o da A. I., Gescom srl invita a verificare le formazioni e i materiali multimediali sui canali ufficiali, declinando fin d'ora ogni responsabilità su eventuali errori o incongruenze.
Gescom Italia srl leader negli stralci immobiliari e nella consulenza tecnico legale, non si occupa di attività di intermediazione imm. di cui alla legge 39/89.
Cl. energ. da verificare.
Le foto pubblicate nel presente annuncio sono indicative e non esaustive della tipologia, qualità, consistenza e indicazione geografica dell'immobile.
CLASSE ENERGETICA: A
- Invia ad un amico
- Segnala abuso