Questo sito utilizza cookie di profilazione, anche di terze parti, per fornirti servizi e pubblicità in linea con le tue preferenze. Se chiudi questo banner o prosegui con la navigazione ne accetti l'utilizzo. Per maggiori informazioni su come modificare il consenso e le impostazioni dei browser clicca qui

vendita locale commerciale Santa Maria a Monte

Pubblicato il 31 gennaio 2026 alle ore 23:16

Santa Maria a Monte – Montecalvoli
Vendesi ( o Affittasi ) Fondo Commerciale di 190 mq con Ottima Visibilità

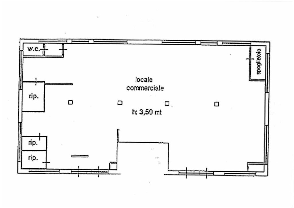
In posizione strategica, su strada ad alto transito veicolare, proponiamo in vendita o locazione un fondo commerciale di circa 190 mq, posto a livello strada, con doppio ingresso e due ampie vetrine che garantiscono un’elevata visibilità.
L'immobile è composto da un grande vano open space, spogliatoio e servizio igienico. Grazie alla presenza dei due ingressi indipendenti, si presta anche per una facile suddivisione in due ambienti distinti, ideale per attività con esigenze separate.

Adatto a molteplici destinazioni d’uso, è ideale per:
attività commerciali al dettaglio o all’ingrosso,
uffici e servizi professionali,
attività artigianali leggere,
showroom o studi tecnici.

L’immobile è dotato di impianto di riscaldamento e raffrescamento con pompe di calore, e impianto elettrico conforme alle normative vigenti.
Grazie alla sua facile accessibilità, è raggiungibile anche con mezzi pesanti per operazioni di carico e scarico.
Completa la proprietà un ampio parcheggio pubblico antistante, comodo per clienti e fornitori.

Immobile libero e subito disponibile.
Classe energetica: G - Rif. C114

  • Invia ad un amico
  • Segnala abuso