vendita locale commerciale Lucca
Pubblicato il 19 novembre 2025 alle ore 23:04





N203J – CENTRO STORICO FRONTE MURA
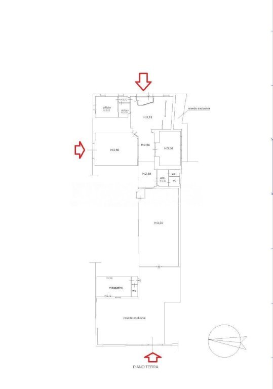
Ti propongo in vendita un ampio locale commerciale (categoria C/1) situato al piano terra di un piccolo fabbricato nel cuore del centro storico. L’immobile, come rappresentato nella planimetria allegata, è composto da diversi vani e si distingue per una splendido giardino esclusivo, un vero e proprio plus raro da trovare in zona centrale, anch'esso con comodo accesso indipendente.
La configurazione del locale, con tre accessi, offre molteplici possibilità di utilizzo, tra cui, previo le dovute verifiche comunali la trasformazione ( se possibile) in una o più unità immobiliari, rendendolo ideale anche per progetti di investimento o residenziali.
L’immobile ha una classe energetica G, con un indice di consumo di 123,45 kWh/mq all’anno. La proprietà è visionabile su richiesta e si trova a pochi passi da comodi parcheggi, facilitando l’accessibilità.
- Invia ad un amico
- Segnala abuso