Vendita Hotel Gaiba
Pubblicato il 27 gennaio 2026 alle ore 09:01
























NUOVA PROPOSTA
IMMOBILE LIBERO
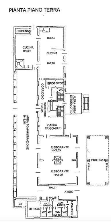
Il complesso immobiliare è situato a Gaiba (RO) in via San Lorenzo ed è composto da un ristorante con alloggi turistici.
Ristorante: Al piano terra, comprende due locali ristoranti, un ingresso con corridoio, cassa, frigobar, spogliatoio, WC, due cucine, dispensa, area somministrazione, due bagni, ufficio e centrale termica. Inoltre, sono presenti altri due bagni e una lavanderia, con un porticato esterno. Al piano interrato, è presente una cantina.
Edificio turistico: Al piano terra, l'edificio è composto da quattro stanze ad uso alloggio turistico, ciascuna con bagno, due ripostigli e un terrazzo.
L'immobile è ideale per attività ricettive, con ampi spazi sia per la ristorazione che per l'ospitalità.
Per te la possibilità di avere un preventivo per il mutuo a condizioni vantaggiose con i nostri partner.
Ulteriori dettagli, foto degli interni, planimetrie e altre info, se disponibili, saranno consultabili previo appuntamento nella sede di FERRARA con MICHELE inoltre ti informerà sulle possibilità di aggiudicarti questo affare.
L'immobile pubblicato al momento è sottoposto a procedura di vendita legale; Gescom srl è specializzata nella ricerca e pianificazione di investimenti immobiliari secondo innovative strategie di acquisto. Contattaci subito potrai valutare assieme a un nostro tecnico canali distinti di acquisto dell'immobile, procedura di vendita diretta senza ricorrere all'asta (d.lgs. 149/2022) e ancora stralcio immobiliare. Le informazioni sopra riportate non sostituiscono l'avviso pubblicato dal Tribunale competente ne' l'integrale gestione da parte del delegato designato. Il testo e le specifiche indicate nella presente pagina sono generate automaticamente attraverso l'utilizzo di software e/o da A. I., Gescom srl invita a verificare le formazioni e i materiali multimediali sui canali ufficiali, declinando fin d'ora ogni responsabilità su eventuali errori o incongruenze.
Gescom Italia srl leader negli stralci immobiliari e nella consulenza tecnico legale, non si occupa di attività di intermediazione imm. di cui alla legge 39/89.
Cl. energ. da verificare.
Le foto pubblicate nel presente annuncio sono indicative e non esaustive della tipologia, qualità, consistenza e indicazione geografica dell'immobile.
CLASSE ENERGETICA: A
- Invia ad un amico
- Segnala abuso