Vendita Capannone Vaiano
Pubblicato il 25 ottobre 2025 alle ore 09:49
























NUOVA PROPOSTA
IMMOBILE LIBERO
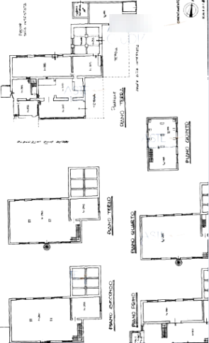
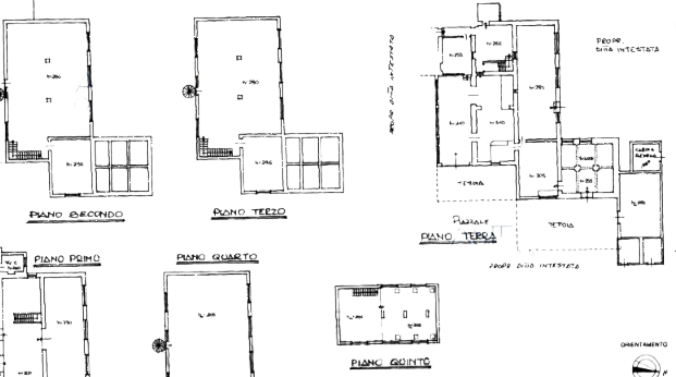
Trattasi di compendio immobiliare ubicato in Via XX Settembre a Vaiano (PO).
L'immobile ha una superficie complessiva di circa 1.300 mq ed è composto da vani ad uso laboratorio, uffici, silos, bagni, tettoie e cabina di trasformazione dell'energia elettrica.
L'unità si compone anche di terrreni con una superficie complessiva 1.760 mq, cosi suddivisi: 520 mq, 740 mq, 260 mq e 240 mq.
Per te la possibilità di ricevere una consulenza telefonica personalizzata per ottenere un preventivo per il mutuo a condizioni vantaggiose con i nostri partner, il consulente ti fornirà tutte le informazioni e ti guiderà nelle possibilità di aggiudicarti questo affare.
L'immobile pubblicato al momento è sottoposto a procedura di vendita legale;
Gescom srl è specializzata nella ricerca e pianificazione di investimenti immobiliari secondo innovative strategie di acquisto.
Contattaci subito per una consulenza telefonica con uno dei nostri esperti, che ti aiuterà a valutare canali distinti di acquisto dell'immobile, come la procedura di vendita diretta senza ricorrere all'asta (d.lgs. 149/2022) e la possibilità di stralcio immobiliare.
Le informazioni sopra riportate non sostituiscono l'avviso pubblicato dal Tribunale competente né l'integrale gestione da parte del delegato designato. Il testo e le specifiche indicate nella presente pagina sono generate automaticamente tramite l'utilizzo di software e/o da A.I. Gescom srl invita a verificare le formazioni e i materiali multimediali sui canali ufficiali, declinando fin d'ora ogni responsabilità su eventuali errori o incongruenze.
Gescom srl, leader negli stralci immobiliari e nella consulenza tecnico-legale, non si occupa di attività di intermediazione immobiliare di cui alla legge 39/89. Cl. energ. da verificare.
Le foto pubblicate nel presente annuncio sono indicative e non esaustive della tipologia, qualità, consistenza e indicazione geografica dell'immobile
CLASSE ENERGETICA: A
- Invia ad un amico
- Segnala abuso