Vendita Capannone Schiavon
Pubblicato il 10 marzo 2026 alle ore 09:02






















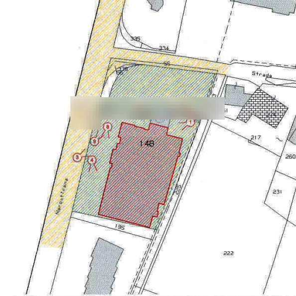
Immobile produttivo con annessa unità commerciale facente funzione di esposizione-show room, zona uffici e magazzino-deposito al piano interrato, su due piani fuori terra e uno interrato; il tutto sito a Schiavon (VI) in via Santa Teresa.
22REB è a disposizione per valutare come la nostra esperienza potrà favorirti nel realizzare il tuo miglior investimento.
L'immobile è oggetto di vendita giudiziaria.
22REB non si occupa di attività di intermediazione imm. di cui alla legge 39/89. Per motivi di privacy la foto dell'immobile/terreno è indicativa ma non esaustiva.
CLASSE ENERGETICA: In fase di valutazione (Classe Energetica in fase di richiesta)
- Invia ad un amico
- Segnala abuso