Vendita Capannone Modena
Pubblicato il 24 gennaio 2026 alle ore 21:16




















RIF. ANNUNCIO VY302
Nella zona artigianale di MODENA OVEST, Real Casa Group dispone in vendita di CAPANNONE INDIPENDENTE su ampio terreno con capacità edificatoria aggiuntiva. La zona è estremamente tattica, ci troviamo a soli 10 minuti dal casello di Modena Nord su strada ampia e ben raggiungibile anche da mezzi pesanti.
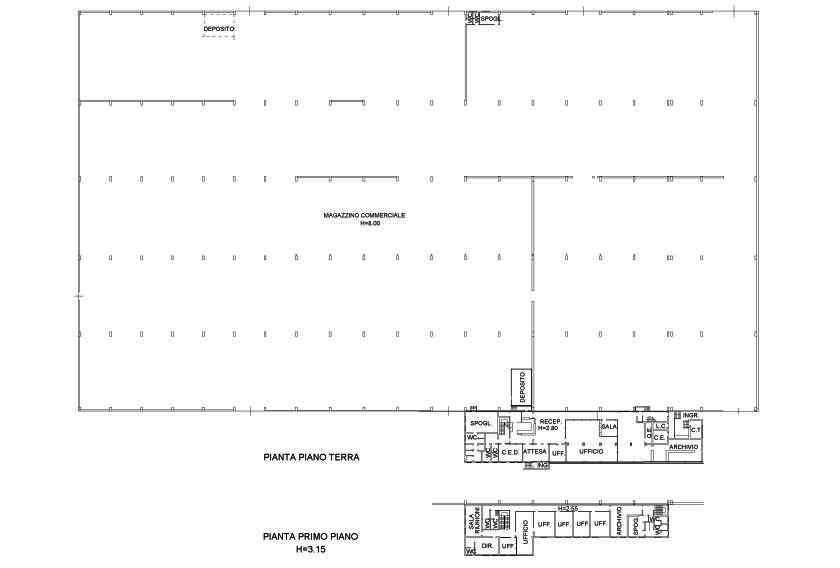
il blocco immobiliare si compone di: 26.000 m2 di superficie di lotto sui quali insiste un capannone (D8 commerciale) di circa 13.500 m2 con parecchi carroponte ed H. interna 8 metri oltre a palazzina uffici di 1400 m2. Presenza di cabina elettrica di proprietà con capacità di 77 kW.
Da verificarsi presso organi competenti la possibilità ad oggi di ampliare la superficie coperta fino a circa 19.000 m2 così come la possibilità di insediamento di attività commerciali oltre che industriali/artigianali. Immobile da riqualificare, pronto per diventare il cuore del tuo prossimo progetto di successo!
Prezzo richiesto: EURO 3.800.000
Per info: 059 29 29 690
Email: realcasamodena@gmail.com
Sito web: www.realcasamodena.it
CLASSE ENERGETICA: G
- Invia ad un amico
- Segnala abuso