Vendita Capannone Modena
Pubblicato il 24 gennaio 2026 alle ore 09:19





RIF. ANNUNCIO: VY277
CAPANNONE INDIPENDENTE LIBERO SU 4 LATI CON AREA CORTILIVA ATTUALMENTE A REDDITO
MO EST - Proponiamo Capannone industriale/artigianale cat. D7 INDIPENDENTE su Lotto privato. L'area asfaltata esterna (ove presenti i cancelli di ingresso) per manovra e carico/scarico ha 7,90 metri dal confine sulla parte frontale e 5,50 su un lato; rifatta da poco l'intera pavimentazione interna ed esterna in cemento.
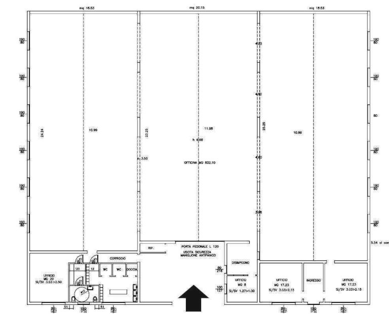
Il capannone è degli anni 70 e presenta metratura coperta pari a circa 1050 m2 con area ''produttiva/lavorativa" di circa 830 m2 con H. al colmo di 6,68 mt. e H. minima 3,50 mt. ben finestrata su tutti i lati; a completamento abbiamo poi vari servizi e 4 Uffici. L'immobile dispone di AREA CORTILIVA ESCLUSIVA per circa 680 m2 che gira su 2 lati - presente DOPPIO INGRESSO su due lati. n.b.: L'IMMOBILE È ATTUALMENTE LOCATO AD AZIENDA OTTIMA PAGATRICE CON CONTRATTO SCADENTE TRA 2 ANNI.
n.b.: Si fa presente che è disponibile all'acquisto anche il lotto confinante ove troviamo capannone indipendente di oltre 1300 m2 h. interna circa 6 mt. con area di pertinenza interna, blocchi laboratorio e deposito/magazzino.
x info:
059 2929690 - STUDIO
335 591 1876 - GIOVANNI
realcasamodena@gmail.com
realcasamodena.it
CLASSE ENERGETICA:
- Invia ad un amico
- Segnala abuso