Vendita Capannone Modena
Pubblicato il 20 febbraio 2026 alle ore 10:05



















RIF. ANNUNCIO: VY351
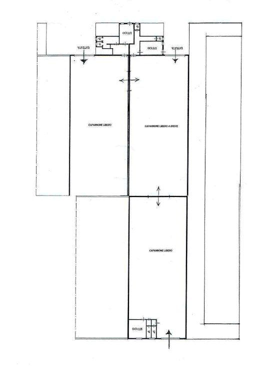
MODENA EST - Nel quartiere Artigianale di Modena Est, zona estremamente comoda alla via Emilia e facilmente raggiungibile anche da mezzi pesanti, proponiamo in vendita Capannone/Laboratorio di testa (cat. catastale D7) già libero e disponibile. Con portone ingresso circa L. 5 h x. 5 mt direttamente sullo spiazzo CONDOMINIALE si presenta come openspace con doppi servizi e piccolo ufficio di 9,5 m2, H. minima 6 mt - max 8 mt circa, impianto elettrico dotato di conformità , NO impianto di riscaldamento, buono stato complessivo, tetto privo di eternit. Piccola rea frontale esterna ad uso esclusivo per carico/scarico e parcheggio.
n.b.: si fa presente che sono disponibili altri due immobili eventualmente acquistabili singolarmente o in toto per arrivare ad una metratura complessiva di circa 1260 m2 (collegabili internamente, vedi planimetrie).
Per informazioni:
059 2929690 STUDIO
realcasamodena@gmail.com
www.realcasamodena.it
CLASSE ENERGETICA: G 272,79 kWh/m2 a
- Invia ad un amico
- Segnala abuso