Vendita Capannone Modena
Pubblicato il 12 dicembre 2025 alle ore 09:04




















RIF. ANNUNCIO VY302
TERRENO EDIFICABILE SU CUI INSISTE CAPANNONE DI STAMPO ARTIGIANALE/INDUSTRIALE E PALAZZINA UFFICI - LOTTO DI CIRCA 28.000 M2
____________________________________________________________________________
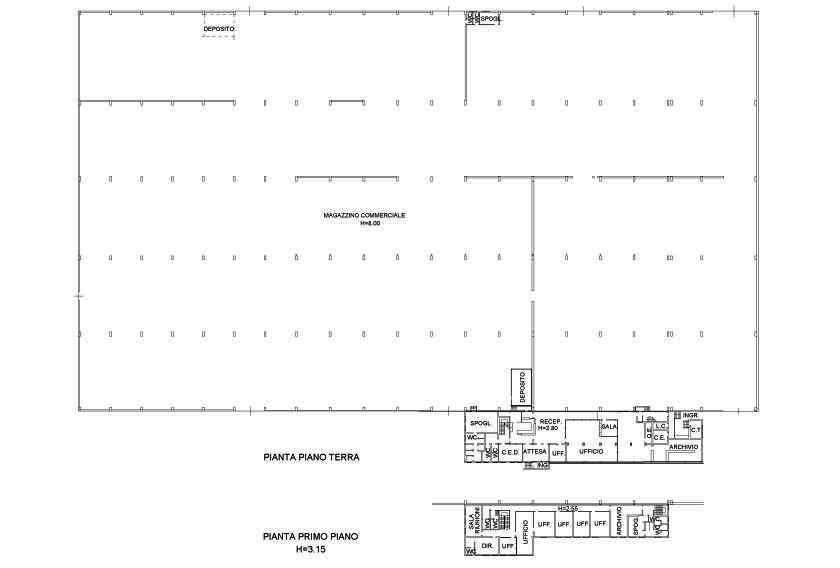
VILLAGGIO ARTIGIANO/MODENA OVEST - Con comoda viabilità e collegamenti, a meno di 10 minuti dal casello MODENA NORD, è in vendita importante compendio immobiliare su superficie/lotto di circa 28.000 m2. Al catasto D8 ideale anche ad uso commerciale per vendite oltre che produttivo (previo verifiche presso organi competenti).
Il complesso è costituito da un CAPANNONE di circa 13.500 m2 + palazzina UFFICI di circa 1400 m2 ed è completamente da rivedere RECUPERANDO LA CUBATURA; area cortiliva che gira sui 4 lati, altezze interne area produttiva circa 8 mt. con presenza di numerosi carroponte, cabina elettrica interna con 77 kw di tensione. Si fa presente che esiste capacità edificatoria complessiva fino a circa 19.000 m2. RICHIESTA EURO 3.800.000,00
x Info:
studio 059 29 29 690
realcasamodena@gmail.com
www.realcasamodena.it
CLASSE ENERGETICA: G
- Invia ad un amico
- Segnala abuso