Vendita Capannone La Loggia
Pubblicato il 31 ottobre 2025 alle ore 09:35














 
							NUOVA PROPOSTA
Trattasi di capannone sito a La Loggia (TO), in via Imperia.
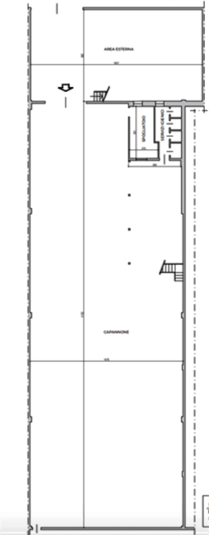
Capannone industriale con una superficie di 701,25 mq, ubicato in zona periferica e produttiva. L'intero edificio sviluppa su due piani fuori terra e piano interrato.
Il capannone è caratterizzato, internamente, da un'ampia area produttiva e una zona spogliatoi e uffici. In particolare, a sinistra rispetto all'ingresso da via Imperia, è presente una zona a due piani fuori terra ed la suddivisione degli spazi è: al piano vi sono gli spogliatoi e servizi igienici e una parte aperta attualmente adibita a stoccaggio/deposito; al primo piano sono presenti due uffici, un primo più ampio locale facente parte della struttura metallica, con vetrate trasparenti e pannelli opachi verso la zona di laboratorio sottostante, e un locale con il servizio igienico.
Questo spazio offre una distribuzione funzionale, adatta a diverse attività professionali, con ambienti spaziosi e ben organizzati.
Per te la possibilità di avere un preventivo per il mutuo a condizioni vantaggiose con i nostri partner.
Ulteriori dettagli, foto degli interni, planimetrie e altre info, se disponibili, saranno consultabili previo appuntamento nella sede di TORINO con ANDREA che inoltre ti informerà sulle possibilità di aggiudicarti questo affare.
L'immobile pubblicato al momento è sottoposto a procedura di vendita legale; Gescom srl è specializzata nella ricerca e pianificazione di investimenti immobiliari secondo innovative strategie di acquisto. Contattaci subito potrai valutare assieme a un nostro tecnico canali distinti di acquisto dell'immobile, procedura di vendita diretta senza ricorrere all'asta (d.lgs. 149/2022) e ancora stralcio immobiliare. Le informazioni sopra riportate non sostituiscono l'avviso pubblicato dal Tribunale competente ne' l'integrale gestione da parte del delegato designato. Il testo e le specifiche indicate nella presente pagina sono generate automaticamente attraverso l'utilizzo di software e/o da A. I., Gescom srl invita a verificare le formazioni e i materiali multimediali sui canali ufficiali, declinando fin d'ora ogni responsabilità su eventuali errori o incongruenze.
Gescom Italia srl leader negli stralci immobiliari e nella consulenza tecnico legale, non si occupa di attività di intermediazione imm. di cui alla legge 39/89.
Cl. energ. da verificare.
Le foto pubblicate nel presente annuncio sono indicative e non esaustive della tipologia, qualità, consistenza e indicazione geografica dell'immobile
CLASSE ENERGETICA: A
- Invia ad un amico
- Segnala abuso