vendita capannone industriale Santa Croce sull'Arno
Pubblicato il 01 marzo 2026 alle ore 23:50


SANTA CROCE SULL' ARNO
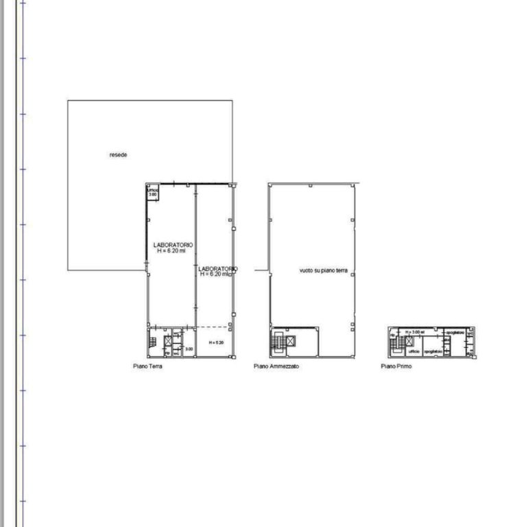
ZONA INDUSTRIALE vendesi capannone con una superficie interna di 500mq e una superficie esterna di 700mq. La superficie commerciale è di 605mq. Il tutto è sviluppato su tre livelli.
-Piano terra: parcheggio privato e grande piazzale con una tensostruttura molto ampia uso magazzino; da un lato si accede al capannone tramite una porta con maniglione antipanico, dall’altro lato si accede da un portone industriale a scorrimento (con all’interno sistema di porta ad avvolgimento rapido), apribile anche dall’esterno perché dotato di telecomando. All’interno vi è un grande spazio diviso a metà da una parete di cartongesso di altissima qualità con un grande portone scorrevole e due porte con maniglione antipanico/antincendio. Una parte era adibita a lavorazione pellame PCT, l’altra (condizionata), allo sviluppo di piastre per stampare. Completa un piccolo ufficio e uno spogliatoio con doppio bagno. A parte, vano scale e ascensore.
-Piano ammezzato: accessibile solo tramite le scale, troviamo un’ampia sala riunione/ufficio con un divisorio, e la possibilità di installare dei fuochi per cucina (è già presente lavello con acqua corrente). Da una porta, si accede ad un soppalco in acciaio e alluminio molto resistente per stoccaggio materiale, dal quale si può scendere direttamente al piano terra tramite una scala in alluminio e ferro molto solida.
-Piano primo: accessibile tramite vano scale ed ascensore/montacarichi troviamo un piccolo archivio, un ufficio spazioso e due ampi spogliatoi con doppi bagni e doppie docce. La zona è ben allacciata alla rete stradale di grande comunicazione Fi. Pi. Li, tosco romagnola SS67, Pistoiese SS66 e molte altre strade statali importanti. Tutti gli impianti (sia elettrico, sia ausiliari come UPS, Aria condizionata, etc) sono sempre stati controllati con regolare manutenzione e sono in perfetto stato. Edificio e pavimentazione in perfetto stato.
Il capannone é dotato di telecamere e allarme.
- Invia ad un amico
- Segnala abuso