vendita capannone industriale Rondissone
Pubblicato il 06 gennaio 2026 alle ore 00:34





















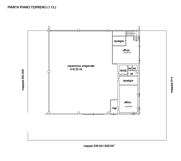
Fabbricato industriale dotato di piazzale esterno per carico/scarico merci e parcheggio funzionale adiacente. Si eleva per due piani fuori terra, collegati internamente da una scala, ed è così composto: al piano terra l’area destinata a magazzino/area produttiva, ingresso con corridoio, due uffici, due ripostigli ed uno spogliatoio con due wc al suo interno, al piano primo è presente un corridoio di disimpegno, un deposito, due uffici, un wc con antibagno ed un ripostiglio.
Le fotografie allegate hanno finalità puramente illustrative e potrebbero non rappresentare in modo esaustivo l’immobile. L’esattezza di tutti i dati pubblicati sarà verificata e confermata in sede di consulenza.
Se desidera valutare l’acquisto di un immobile in asta in totale trasparenza e sicurezza, si affidi alla nostra competenza e serietà. Offriamo un supporto completo al Cliente, accompagnandolo a 360° lungo tutto il percorso tecnico e finanziario, dalla scelta dell’immobile alla partecipazione alla gara d’asta.
Contattaci per una consulenza gratuita presso il nostro studio. Gli immobili acquistati tramite aste giudiziarie sono mutuabili e finanziabili alle stesse condizioni di quelli presenti sul mercato libero.
I nostri servizi Ci dedichiamo con passione e professionalità a:
Aste giudiziarie
Compravendita immobiliare (residenziale, commerciale e industriale)
Cessione d’azienda
Il nostro obiettivo è offrire un servizio efficace, su misura e orientato ai risultati.
Nota per investitori. La nostra strategia si focalizza sull’acquisizione a forte sconto di crediti ipotecari e NPL (Non Performing Loans), oggi tra le opportunità di investimento più interessanti. Proponiamo due modalità operative:
Saldo e stralcio immobiliare
Asta pilotata remissiva stragiudiziale
- Invia ad un amico
- Segnala abuso