vendita capannone industriale Cerreto Guidi
Pubblicato il 09 gennaio 2026 alle ore 00:02












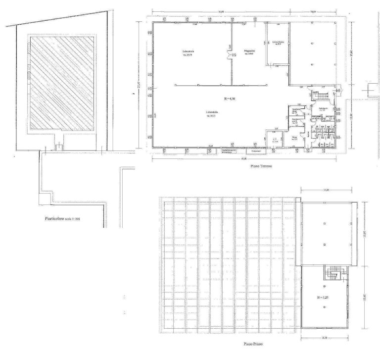
Cerreto Guidi, zona Stabbia, vendesi capannone industriale composto da una zona laborartorio e zona dipendenti e uffici.
La zona laboratorio รจ divisa in magazzino, laboratori e camera blindata.
Al piano terra mensa, spoiatoi, wc separati e ambulatorio. oltre locale tecnico e loggiato di 140mq al grezzo.
Al piano superiore uffici al grezzo per circa 140mq e ulteriore magazzino a loggiato per altri 140mq.
infine al piano secondo rimessa mansardata.
superfici esterne di mq 1000 circa ripartito sui 4 lati.
Capannone industriale in vendita - 6 vani - 1317 mq
Rif. F-1100
- Invia ad un amico
- Segnala abuso