vendita villetta quadrifamiliare Cecina
Pubblicato il 14 febbraio 2026 alle ore 00:19






Cecina periferia sud in villa quadrifamiliare, appartamenti modello villetta con giardini indipendenti e terrazza abitabili massimo coeficente energetico,
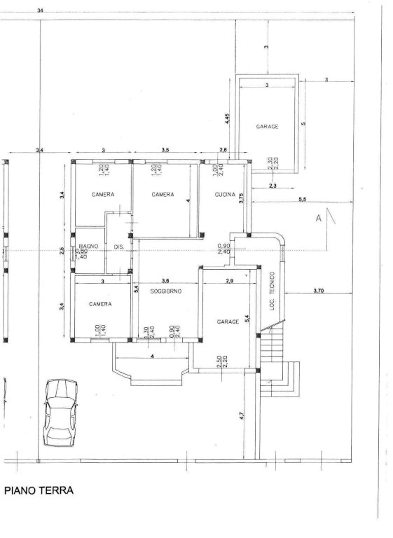
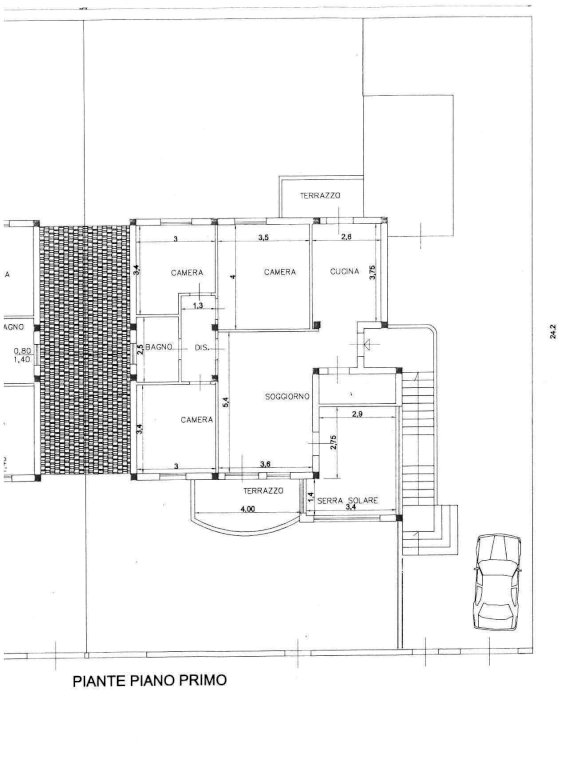
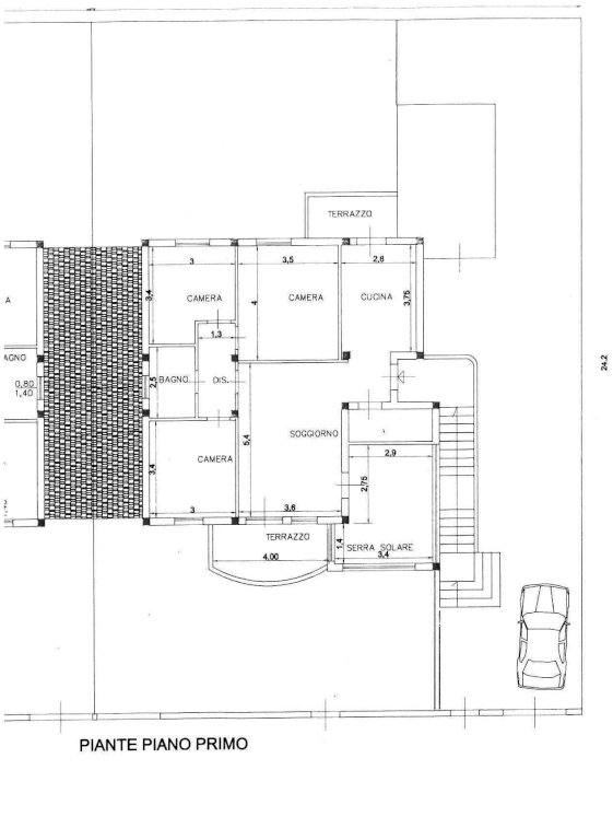
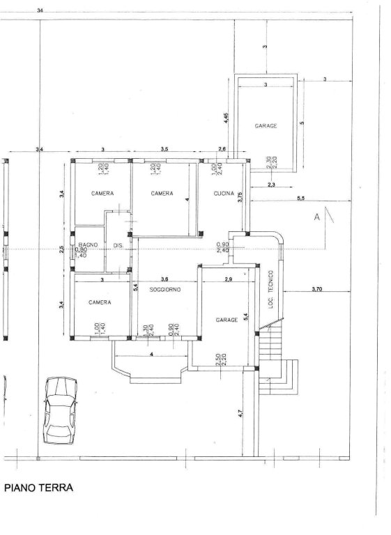
tutte le ultime novità in base alle normative di costruzione, appartamenti indipendenti piano terra o piano primo, composti da cucina abitabile ,tre camere ,doppi servizi,
serre solari ,garage-
Pagamento in avanzamento lavori-
Nessuna spesa condominiale-
Possibiltà di permuta con il vostro appartamento usato-
Disponibile un piano terra di mq 86 composto da ampio portico d'ingresso, soggiorno, cucina abitabile, una camere matrimoniale e due camerine, bagno più un locale tecnico nel quale è possibile realizzare un secondo bagno, giardino di 160 mq e garage.
- Invia ad un amico
- Segnala abuso