vendita villetta bifamiliare San Giuliano Terme
Pubblicato il 10 dicembre 2025 alle ore 23:04



Ghezzano – San Giuliano Terme
Villa Bifamiliare di Nuova Costruzione
A pochi minuti dal centro di Pisa, in una zona tranquilla e immersa nel verde, nasce questa elegante villa bifamiliare di nuova costruzione, progettata per offrire comfort, privacy e massima qualità abitativa.
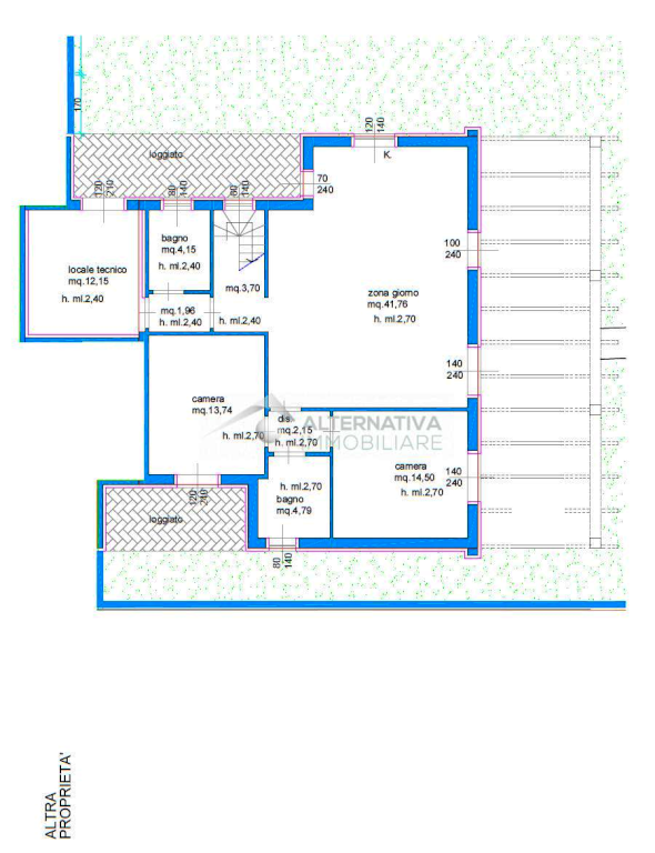
Circondata da un ampio giardino privato, la villa si sviluppa principalmente al piano terra, dove gli ambienti sono luminosi e ben distribuiti. L’ampia zona giorno in open space è valorizzata da grandi aperture che affacciano sul loggiato di oltre 40 m², perfetto per pranzi all’aperto e momenti di relax.
La zona notte comprende due camere da letto spaziose, con possibilità di ricavare una terza camera in base alle proprie esigenze. Presenti due bagni finestrati e un comodo ripostiglio.
Al piano superiore ampio ambiente sottotetto con ottime altezze pluriuso, ideale come studio, area hobby, spazio relax o camera per gli ospiti.
Il grande giardino permette inoltre la realizzazione di una casetta in legno di circa 12 m², da utilizzare come dépendance, atelier o spazio dedicato al benessere.
Dotazioni principali:
Pannelli fotovoltaici
Riscaldamento a pavimento
Cappotto termico di ultima generazione
Parquet nella zona notte
Videocitofono, cancello carrabile elettrico e impianti moderni
Consegna prevista: inizio 2027
Classe energetica prevista: A4 (in attesa di certificazione)
Una villa che unisce eleganza, tranquillità e sostenibilità: la soluzione ideale per chi cerca una residenza moderna e di alto livello alle porte di Pisa.
- Invia ad un amico
- Segnala abuso