vendita villetta bifamiliare Pontedera
Pubblicato il 19 gennaio 2026 alle ore 23:18













Pontedera
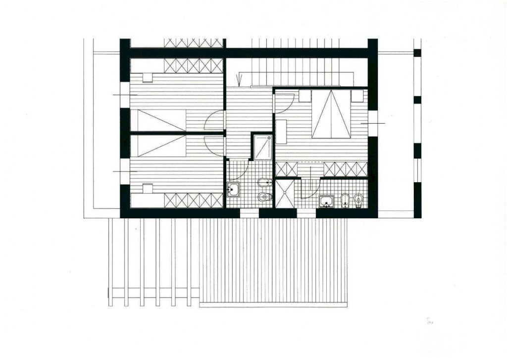
Villetta bifamiliare in vendita - 5 vani - 200 mq - con ingresso indipendente
composto da 3 camere e 3 bagni PONTEDERA: BELLARIA, Via della Bianca: intervento edilizio per la costruzione di VILLE BIFAMILIARI con giardino e garage. La villetta al piano terra è composta da loggiato con ingresso in ampio soggiorno, cucina abitabile, bagno e garage, oltre patio per cene all'aperto; al piano superiore 3 camere, 2 bagni, loggiato e balcone. Per la costruzione dell'immobile vengono utilizzati materiali di ultima generazione in materia di risparmio energetico. Finiture di alta qualità, con impianto fotovoltaico, riscaldamento a pavimento solare, predisposizione impianto allarme, clima e addolcitore, ecc. Possibilità di personalizzare la villetta alle proprie esigenze. Classe energetica A4. Informazioni e prenotazioni in agenzia. Prezzi a partire da euro 515000
Classe energetica: A4 - Rif. RC5086
- Invia ad un amico
- Segnala abuso