vendita villetta bifamiliare Pietrasanta
Pubblicato il 31 dicembre 2025 alle ore 23:18



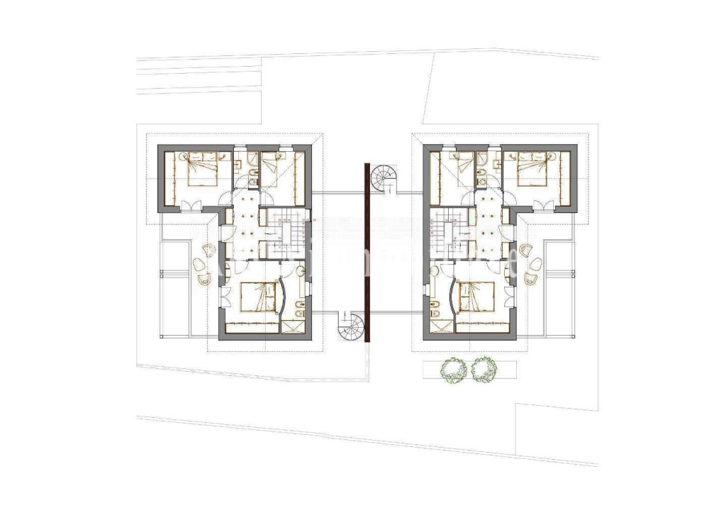
PIETRASANTA Campagna, nuova costruzione, disponibili due ville in bifamiliare unite solo da garage di pertinenza e distribuite su due livelli, composte da ingresso, soggiorno, cucina-pranzo, dispensa e bagno al piano terra- disimpegno, 2 camere doppie di cui 1 con bagno privato, camera singola e bagno. Ampio balcone e terrazza.
Garage. Internamente le ville hanno stessa suprficie mentre il giardino uno รจ di 400 e l'altro 1.400 mq.. Riscaldamento a pavimento e aria condizionata.
Prezzi : 700.000 Euro con 400 mq. di giardino e 800.000 Euro con 1.400 di giardino.
- Invia ad un amico
- Segnala abuso