Vendita Villetta a schiera Viareggio
Pubblicato il 13 dicembre 2025 alle ore 23:33














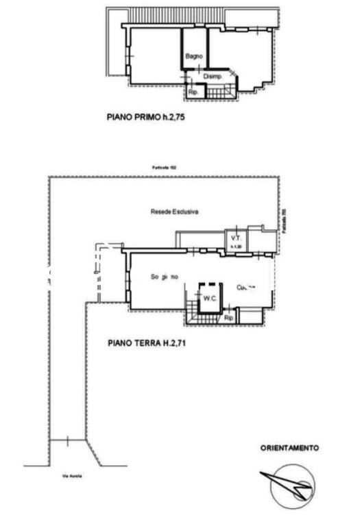
Villetta a schiera in zona Bicchio a Viareggio.
ristrutturata nel 2020 in modo sapiente valorizzando così gli spazi generosi e rendendola più fruibile. l'immobile circondato da un giardino su due lati permette anche di parcheggiare la vettura .
l'immobile è composto da soggiorno con cucina a vista ed un bagno con doccia, la zona notte al primo piano invece dispone di due camere matrimoniali entrambi con terrazzino ed un bagno con vasca idromassaggio.
la soffita è utilizzata come ripostiglio
- Invia ad un amico
- Segnala abuso