vendita villetta a schiera Luni
Pubblicato il 21 dicembre 2025 alle ore 23:18
























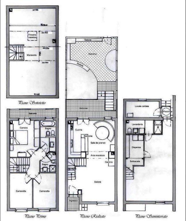
Luni in zona servita a pochi chilometri dal mare villetta a schiera su quattro livelli collegati internamente da comoda scala. La villetta e' cosi' composta: Ingresso da piano terra in soggiorno con camino e cucina a vista con zona pranzo e uscita su terrazzo e piccolo giardino. Al piano superiore tre camere da letto di cui una matrimoniale e due camerette,due bagni di cui uno con vasca e finestra e l'altro con doccia,balcone.Ampia mansarda finestrata open space piastrellata. Al piano semi interrato collegato sia internamente che esternamente ampia taverna con dispensa e zona lavanderia. Riscaldamento autonomo.
Per tutelare la privacy dei nostri clienti vi informiamo che l’indirizzo e’ approssimativo e le informazioni e i valori presenti nell’annuncio non costituiscono, in alcun modo, elemento contrattuale. Le informazioni dettagliate e specifiche dell’immobile verranno fornite compilando il form dell’agenzia o contattandoci telefonicamente.
- Invia ad un amico
- Segnala abuso