Vendita Villa Porto Valtravaglia
Pubblicato il 29 ottobre 2025 alle ore 08:17







 
							Villa moderna vista lago, su tre piani, con rifiniture di particolare valore. villa con vista lago, zona di pregio. Prossima realizzazione
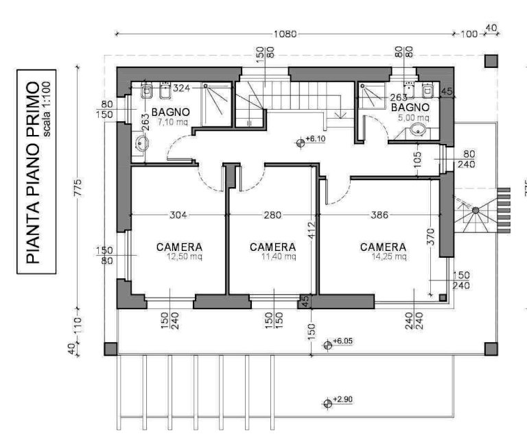
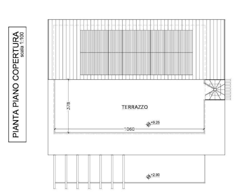
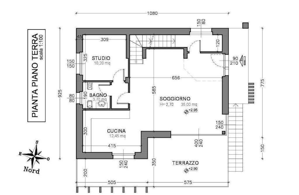
In ottima molto silenziosa, zona vicino al lago Maggiore (10 minuti a piedi) ma in posizione dominante, si vende in prossima realizzazione villa moderna La villa proposta è progettata per essere un edificio ad energia quasi zero NZEB (nearly zero energy building), la classe energetica sarà quindi compresa tra A2 e A4 rispettando pienamente i requisiti presenti e futuri sulle prestazioni energetiche degli edifici, oltre a garantire un comfort abitativo di livello superiore. Lo sviluppo verticale è su 4 livelli per un totale di 365 metri quadrati dei quali 95 sono costituiti da terrazzi. Partendo dal piano seminterrato all'interno del quale troviamo un'ampia autorimessa doppia, una comoda lavanderia e il locale tecnico dedicato al centro di comando degli impianti tecnologici. Salendo dalla scala interna di collegamento accediamo al piano terra dove troviamo la zona giorno composta da un ampio e luminoso soggiorno collegato direttamente alla cucina creando un'unica ma comunque ben separata area dalla quale si puó accedere direttamente tramite una generosa finestra scorrevole allo spazioso terrazzo parzialmente coperto, a completamento del piano terra sono presenti un comodo bagno di servizio, uno studio e un pratico ripostiglio alloggiato nel sottoscala. Al piano primo è situata la zona notte, articolata in 3 camere di cui una matrimoniale e due ampie singole, troviamo poi due servizi igienici e un ampio disimpegno che conduce al terrazzo (accessibile da ogni camera), una scala esterna conduce all'ultimo piano, caratterizzato da una grande e panoramica terrazza vista lago completamente personalizzabile e predisposta con la possibilità di installare eventuale Jacuzzi, piscina, gazebo, salottino e altri arredi. La struttura portante della villa sarà in cemento armato per la parte interrata, mentre per i piani superiori avremo murature esterne in laterizio e solai pieni in cemento armato. Le murature divisorie interne saranno realizzate in cartongesso a doppia lastra. Le scale interne in cemento armato rivestite in marmo. I serramenti saranno del tipo monoblocco in pvc con triplo vetro e tapparelle/frangisole in alluminio. Pavimentazioni in gres porcellanato di prima scelta o parquet in legno. Impianto idro termosanitario alimentato da pompa di calore aria/acqua di ultima generazione e sistema di emissione e riscaldamento a pavimento con possibilità di funzione raffrescamento estivo. Impianto elettrico domotico di ultima generazione interfacciato all'impianto fotovoltaico. Bagni con accessori dalle linee moderne e funzionali, a richiesta progettazione e realizzazione dell'arredamento su misura. Come dotazioni esterne saranno presenti cancello carraio, pedonale e portone sezionale di ingresso automatici. A richiesta potrà essere installato impianto di allarme e videosorveglianza. tel 3474229948
CLASSE ENERGETICA:
- Invia ad un amico
- Segnala abuso