vendita villa Pietrasanta
Pubblicato il 09 marzo 2026 alle ore 00:46
























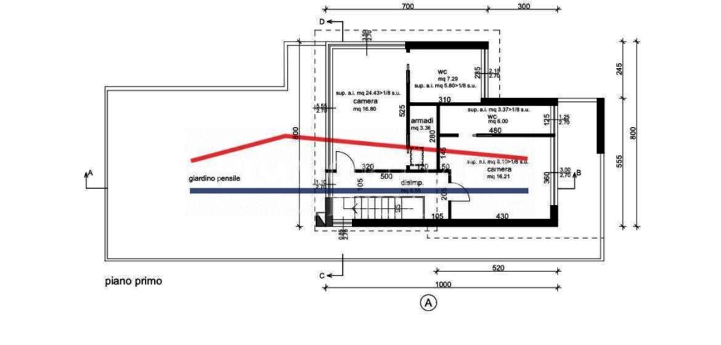
Vaiana di Pietrasanta, Vendesi Villa di 190mq su 2 livelli. L'immobile è in Fase di Costruzione e Verrà Consegnato a Dicembre 2025 Completamente Finito ed in Classe A2. Ingresso su Salone, Cucina Abitabile, Camera Matrimoniale con Bagno, Camera Matrimoniale, Bagno di Servizio ed Esternamente Lavanderia. Piano Primo con 2 Camere Matrimoniali, entrambe con Bagno in Camera e una con Cabina Armadi, Terrazzo Semi Perimetrale e Lastrico Solare di 40mq. Completano l'Immobile 5000mq di Giardino con Piscina.
Richiesta € 1.600.000 rif. 3494
Classe energetica "A/2" Ape 30 kwh/m2
Si precisa ai signori clienti che gli indirizzi inseriti all'interno degli annunci sono puramente indicativi e vogliono solo essere un utile ausilio nell'individuazione della zona ove è ubicato l’immobile pur rispettando la “Privacy” e la riservatezza dei venditori/locatori.
L'Agenzia “L’IMMOBILIARE VERSILIA” di Adami Paolo & c. S.a.s. riceve dal Lunedì al Sabato in orario d'ufficio e, nei mesi estivi, anche la Domenica su appuntamento. Per richiedere informazioni o per fissare un appuntamento potete contattarci ai seguenti numeri: 338.2131727 (Paolo Adami - Titolare) - 339.6188844 (Sabrina Tarabella) – 0585.242875 (Agenzia) oppure anche direttamente tramite il nostro indirizzo di posta elettronica: info@limmobiliareversilia.it
L'Agenzia “L’IMMOBILIARE VERSILIA” di Adami Paolo & c. sas nasce nel 2007 a Marina di Massa in posizione strategica nel territorio Apuo - Versiliese. Il nostro impegno, la professionalità e la consapevolezza di avere come oggetto del nostro lavoro uno dei beni più importanti per la vita ci ha imposto un rigoroso metodo di operare basato su regole e principi ferrei.
La “missione” aziendale che contraddistingue la consolidata realtà dello Studio “L’IMMOBILIARE VERSILIA” nel panorama delle agenzie di mediazione immobiliare nel territorio di competenza è rappresentato dall’impegno costante da parte del suo titolare e dello staff di garantire una speciale cura nei confronti del cliente che può sempre contare su livelli qualitativi di servizio particolarmente affidabili. Non una semplice agenzia immobiliare quindi, ma una struttura di consulenza a 360 gradi per assistere, passo dopo passo, anche il cliente più esigente con un servizio dedicato ed esclusivo. Sito: www.limmobiliareversilia.it
- Invia ad un amico
- Segnala abuso