vendita villa Pietrasanta
Pubblicato il 20 febbraio 2026 alle ore 23:19






















RIF. FVS3-03
Nella campagna di Pietrasanta vicino a Forte dei Marmi, Pietrasanta e la sua Marina, disponiamo di una bella villa in costruzione su ampio terreno con piscina.
L'immobile si distribuisce su due livelli oltre un comodo piano seminterrato.
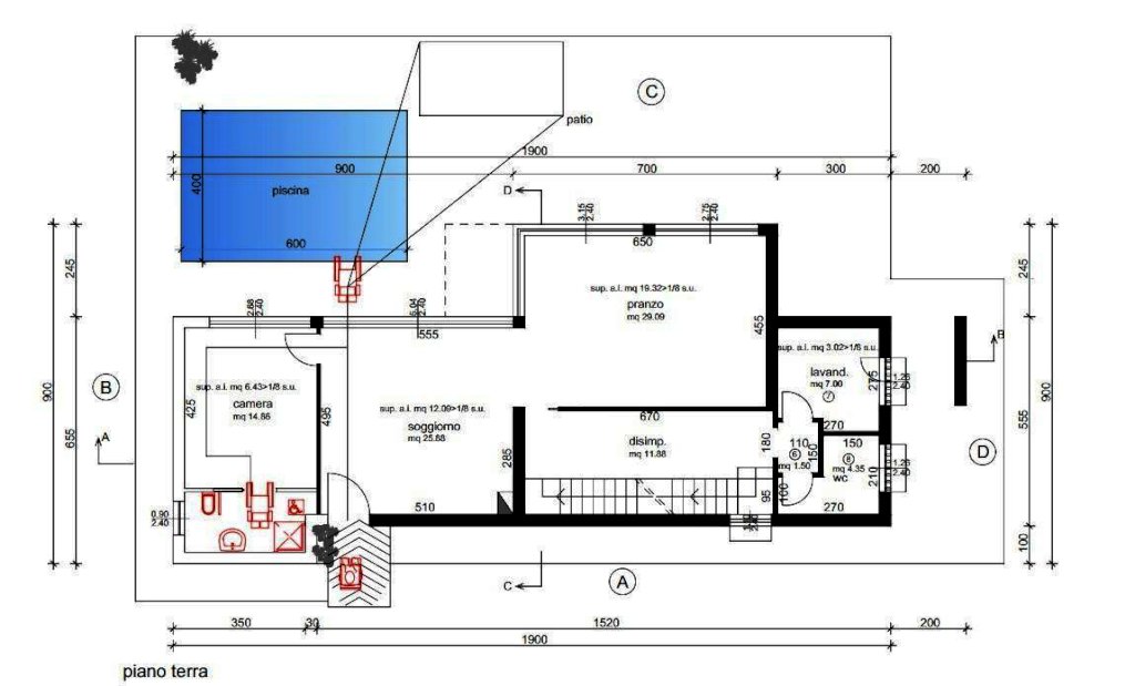
L'accesso all' immobile è su ampio salone con soggiorno pranzo/cucina ed uscita su giardino, ampio disimpegno con stanza lavanderia e bagno.
Sullo stesso piano troviamo una camera matrimoniale con bagno e con accesso esterno.
Tutta la zona giorno si affaccia su bel giardino e piscina.
Salendo le scale al primo piano della villa troviamo ampio disimpegno notte con due camere matrimoniali entrambe con bagno padronale, di cui una con stanza armadi.
Ogni stanza ha uscita sula terrazza che contorna per tre lati il perimetro della villa.
Dal piano terra si accede sia internamente che esternamente al piano seminterrato dove troviamo quattro vani con scannafosso, ad uso cantina e un vano tecnico.
La piscina e il grande giardino fanno da cornice a questa meravigliosa proprietà.
Il giardino è di circa 5000 mq.
- Invia ad un amico
- Segnala abuso