vendita villa Forte dei Marmi
Pubblicato il 15 febbraio 2026 alle ore 00:32








Forte dei Marmi, nel prestigioso quartiere di Roma Imperiale, a circa 900 metri dalla spiaggia, proponiamo in vendita una villa di circa 300 mq allo stato attuale, inserita in un lotto di circa 1.670 mq.
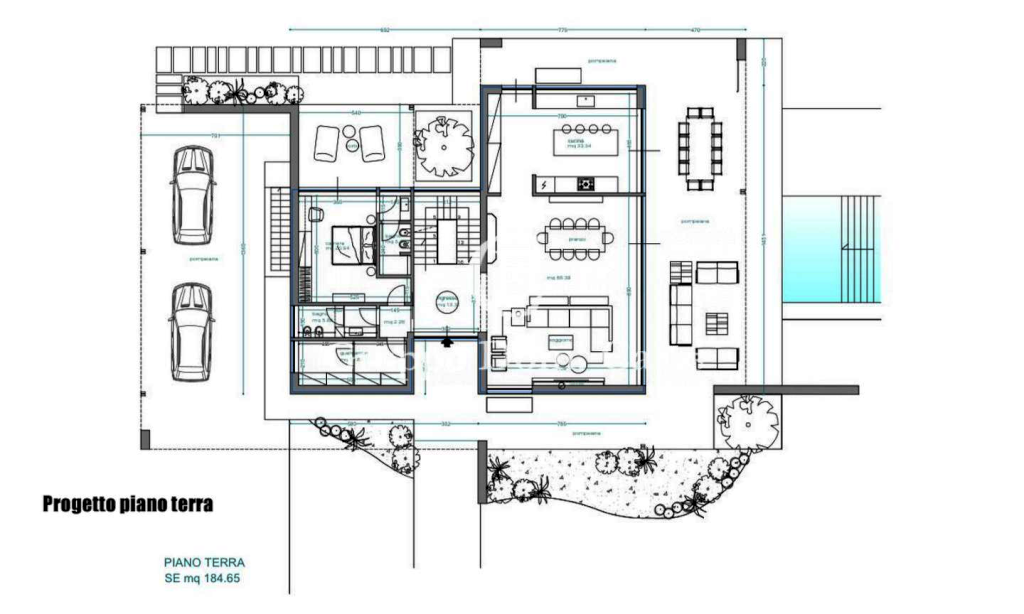
Lo studio progettuale prevede demolizione e ricostruzione comprensivo della realizzazione di una piscina. la nuova villa sarà di circa 500 mq, sviluppata su tre livelli:
Piano terra: ampio e luminoso soggiorno con zona pranzo, cucina abitabile, camera matrimoniale con bagno privato, bagno ospiti, ripostiglio e veranda affacciata sulla piscina.
Piano primo: due camere matrimoniali con bagno privato e terrazza, oltre a camera padronale con bagno en suite, cabina armadio e terrazza.
Piano interrato: soggiorno, cucina, due camere con bagno, lavanderia e area spa con bagno.
Completano la proprietà un’ampia piscina e diversi posti auto interni.
Per informazioni riservate e trattativa, vi aspettiamo presso la nostra sede di Via Carducci 26.
- Invia ad un amico
- Segnala abuso