vendita villa Forte dei Marmi
Pubblicato il 01 dicembre 2025 alle ore 23:01







Forte dei Marmi Vittoria Apuana.
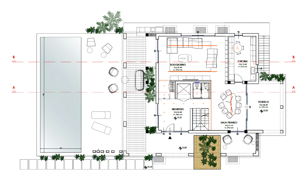
Proponiamo in vendita stupenda villa singola con piscina di prossima realizzazione.
Il progetto, personalizzabile a seconda delle esigenze, prevede una villa di circa 330 mq così suddivisi:
Al piano terra ingresso, ampio salone, sala da pranzo, cucina abitabile, bagno di servizio e portico per il pranzo all'aperto.
Al primo piano la zona notte composta da ampia camera padronale con guardaroba e bagno, camera singola con bagno privato ed altre due camere matrimoniali servite da un bagno oltre ad ampie terrazze.
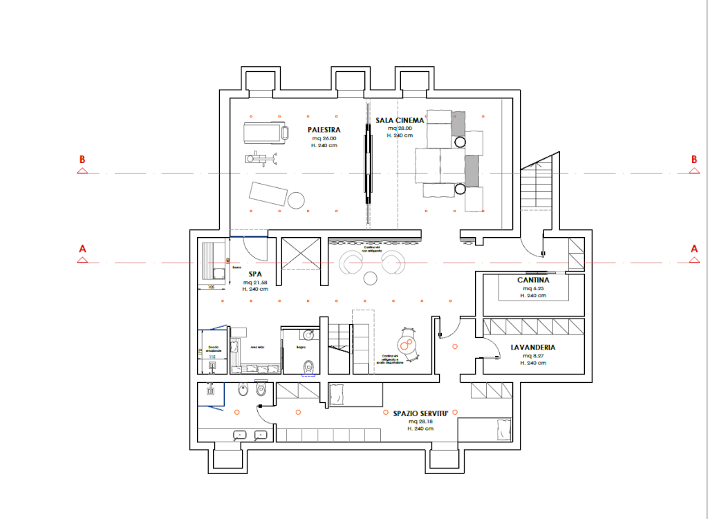
Ampio e luminoso interrato dove poter realizzare un piccolo appartamento di servizio composto da camera e bagno oltre a lavanderia, spa, palestra e cantina.
La suddivisione degli spazi può essere personalizzata a piacimento del cliente.
Ampio giardino di circa 1500 mq sui quattro lati dell'immobile con vari posti auto interni ed una splendida piscina.
- Invia ad un amico
- Segnala abuso