Vendita Villa Desenzano del Garda
Pubblicato il 12 dicembre 2025 alle ore 21:18





















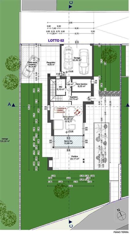
A soli 300 metri dal lago e dalla passeggiata e a breve distanza dal centro storico di Desenzano del Garda, inserita in tranquillo contesto comodo ai principali servizi, proponiamo in vendita moderna ed esclusiva villa in costruzione, sviluppata su due piani fuori terra con ampi spazi interni ed esterni. Al piano terra troviamo la zona living con serra bioclimatica, cucina a vista e accesso diretto attraverso le ampie vetrate al portico, al giardino e alla piscina privata, un bagno finestrato e il locale tecnico. La zona notte è situata al piano superiore ed è composta da camera padronale con bagno privato e cabina armadio, camera matrimoniale, camera singola e ulteriore bagno finestrato. Ogni stanza godrà del proprio accesso diretto all'ampia terrazza. A completare la proprietà il comodo garage doppio e un posto auto scoperto al piano terra. Villa dal design contemporaneo, caratterizzata da un eccellente efficienza energetica, finiture di ottima qualità, grande cura nei dettagli e nella scelta dei materiali costruttivi, in grado di offrire un elevato comfort abitativo. Restiamo a disposizione per ulteriori informazioni su richiesta.
CLASSE ENERGETICA:
- Invia ad un amico
- Segnala abuso