Vendita VILLA Borgomezzavalle
Pubblicato il 31 ottobre 2025 alle ore 23:46























Villa angolare in buono stato di manutenzione di n.6 vani, disposta su tre livelli, con giardino di proprietà .
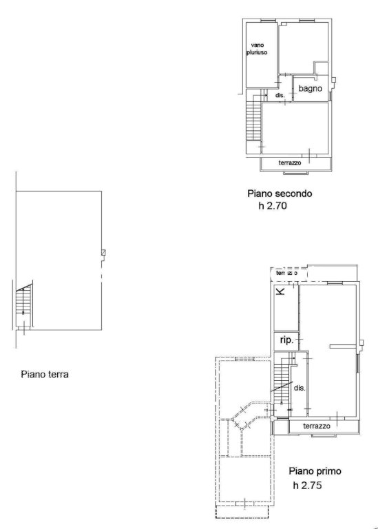
In zona servita, a pochi minuti di distanza da ogni tipo di servizio, in strada senza sfondo, proponiamo villa angolare di n.6 vani, disposta su tre livelli, (piano terra, piano primo e piano secondo).
La soluzione è ideale per famiglie numerose, giovani coppie o per chi volesse fare un investimento dallâ alta resa.
La porta dâ ingresso si apre su un ampio vano attualmente utilizzato come soggiorno, che può essere utilizzato o come ufficio o come monolocale ricreando il bagno.
Le comode scale in cotto ci conducono al piano primo, in cui è situato il salone doppio, dotato di tripla esposizione.
Qui è presente la cucina a vista, da cui tramite la portafinestra si accede alla prima terrazza.
Sala da pranzo con camino, ideale per pranzi e cene.
Dall'altra parte del soggiorno è presente un'altra terrazza.
Ripostiglio. Vano ad uso lavanderia.
Al secondo piano è presente la zona notte, composta da n.3 camere da letto, di cui una con accesso alla terza terrazza.
Bagno finestrato con vasca e box doccia.
Infine all'ultimo piano è presente la soffitta praticabile ad uso ripostiglio.
Completa la proprietà il giardino di circa 200mq.
La soluzione si trova in una zona servita da mezzi pubblici, in cui sono presenti tutti i servizi di prima necessità .
Nelle immediate vicinanze si trova la stazione e locali commerciali, bar, supermercati, ristoranti e farmacie.
L'immobile gode di un'ottima posizione per vivere al meglio la quotidianità di Prato, vista la vicinanza immediata del casello autostradale di Prato Ovest.
- Invia ad un amico
- Segnala abuso