Vendita Terreno Edificabile Monreale
Pubblicato il 07 marzo 2026 alle ore 21:18














Terreno in contrada Castellaccio Caputello, ai piedi del Monte Caputo, piccolo massiccio montuoso che domina Palermo e Monreale con i suoi 764 metri di altezza, il monte alla sua sommità è impreziosito dalla presenza del Castellaccio di Monreale anche detto Castello di San Benedetto, vero e proprio gioiello storico: unico esempio di monastero - fortezza militare, rimasto nella Sicilia occidentale; il terreno dista 650 metri dalla Via Regione Siciliana che conduce a San Martino delle Scale, offrendo una vista panoramica mozzafiato su Palermo e la sua costa, di forma trapezoidale è terrazzato per rendere più agevole la coltivazione dei numerosi alberi di ulivo presenti, che se coltivati potranno donarti un olio di buona qualità.
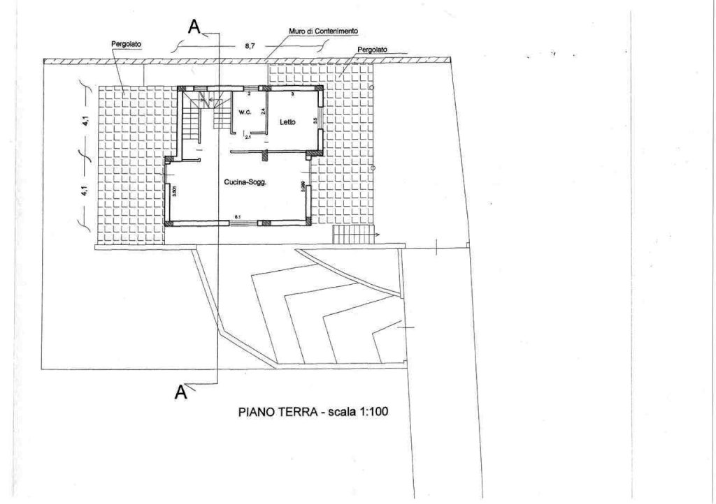
Nel Piano Regolatore Generale del Comune di Monreale il terreno ricade in zona VL1, destinata a costruzioni per villeggiatura ed attrezzature turistico-alberghiere, con vincolo idrogeologico e paesaggistico, il terreno dispone già infatti di un progetto per la realizzazione di un'abitazione in villino unifamiliare su tre livelli, con una superficie commerciale di circa 180 mq.
Immagina di poter vivere immerso nella natura in un luogo tranquillo e così suggestivo, il tuo sogno di vivere nella casa che hai sempre desiderato potrebbe realizzarsi, non lasciarti sfuggire questa opportunità, contattaci.
Le visite sull'immobile si effettuano tutti i giorni previo appuntamento.
Per maggiori informazioni e/o visite su questo o altri immobili, vi invitiamo a contattarci ai seguenti recapiti: tel. 0916400147, 0916417016 - cell. 3929385891.
CLASSE ENERGETICA:
- Invia ad un amico
- Segnala abuso