vendita rustico/corte Lucca
Pubblicato il 25 gennaio 2026 alle ore 23:16
















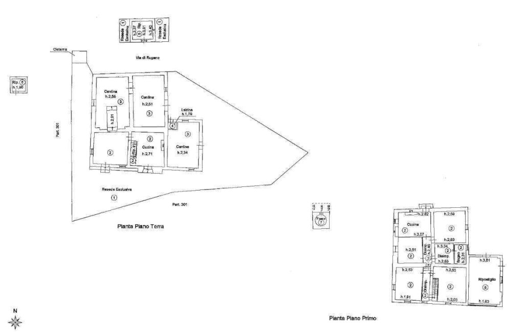
P.S.STEFANO - Lucca VENDESI immerso nelle colline di Lucca antico casale di campagna da ristrutturare sviluppato per circa 300 mq oltre ad un ricovero attrezzi mq 60 circa e 30.000 mq dioliveto e vigneto (attualmente dismessi ).
La proprietà si compone al
PIANO TERRA da ingresso, cucina, sala, ripostiglio, bagno, cantina;
PRIMO PIANO , 3camere e studio.
Adiacente all'abitazione troviamo l'antico fienile da poter collegare.
Corredano la proprietà corpo staccato di circa 60 mq oltre a terreno circostante per circa 30 000 mq sove sono rpesenti olivi e vigneti dismessi.
Classe energetica: G - Rif. 4432
- Invia ad un amico
- Segnala abuso