vendita rustico/corte Cascina
Pubblicato il 13 novembre 2025 alle ore 23:18
























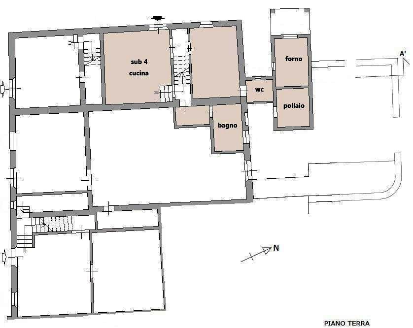
Rif. V570 NAVACCHIO VIC. Piccolo fabbricato costituito da tre terratetti ad uso residenziale con annessi locali di sgombero e circondati da corte comune di circa 2600 mq (articolata in ampi spazi verdi, aree ad uso parcheggio e in parte terreno agricolo). Il fabbricato è un edificio di interesse tipologico, il tipico rustico toscano, inserito in contesto pregievole per la bellezza della natura, la tranquillità e allo stesso tempo per la vicinanza ad ogni tipo di servizio.
Tutti e tre i terratetti si sviluppano su due livelli per una superficie a civile abitazione di circa 240 e circa 180 mq come locali di sgombero tutto completamente da ristrutturare fatta eccezione per la copertura che è stata rifatta nel 2017.
Unità n. 1
Terratetto angolare disposto su due livelli e composto al P.T. da due vani oltre a un bagno e w.c.; al P.1° raggiungibile da scala interna in muratura, un piccolo disimpegno, due vani e un ampio locale di sgombero. E' corredato al piano terra ed esterno all'abitazione di un caratteristico forno con annesso pollaio.
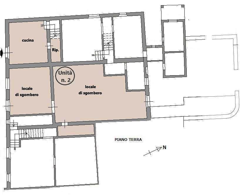
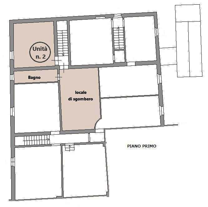
Unità n. 2
Terratetto angolare disposto su due livelli e composto al P.T. da un vano a abitazione civile con ripostiglio. Al P.1° raggiungibile da scala interna in muratura un vano per civile abitazione, un bagno e un ampio locale di sgombero. Sono annessi a questo terratetto, due grandi locali di sgombero al piano terra, comunicanti fra loro con accessi esterni distinti.
Unità n. 3
Terratetto centrale disposto su due livelli composto al P.T. da un vano a civile abitazione, bagno e un ampio locale di sgombero; al P.1° raggiungibile da scala interna in muratura, un piccolo disimpegno, tre vani per civile abitazione e un ampio locale di sgombero. Richiesta €270.000
- Invia ad un amico
- Segnala abuso