Vendita Hotel Piossasco
Pubblicato il 03 marzo 2026 alle ore 09:19
























NUOVA PROPOSTA
Complesso immobiliare ubicato nel comune di Piossasco (TO) in Via Rapida ai Castelli. Il complesso è così composto:
A, edificio alberghiero composto da locali collegati con scale interne e ascensori, articolato in:
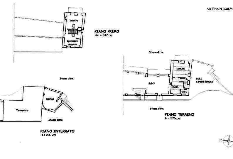
- piano seminterrato: sala, cucina grill, vani tecnici, locale macchine ascensore, fossa ascensore e locale sottoscala esterno, con una superficie di circa metri quadrati 60;
-piano terreno: hall di ingresso, hall, sala, locale esposizione vini, cucina, locale celle frigorifere, lavatoio, cantina, servizi igienici, vani tecnici e sottoscala esterno, con una superficie di circa metri quadrati 410;
- piano primo: salone, due sale, bar, cucina, loggiato, servizi igienici, vano tecnico e deposito esterno, con una superficie di circa metri quadrati 450;
- piano secondo: quattro camere dotate di bagno, due camere dotate di ripostiglio e bagno, deposito, ripostiglio, vano tecnico e servizi igienici, con una superficie di circa metri quadrati 245;
- piano terzo (sottotetti): quattro camere dotate di bagno e una camera dotata di doppi servizi, con una superficie di circa metri quadrati 150;
- torre (6 livello): camera accessibile da scala interna, oltre a separato corpo racchiudente locale centrale termica, locale centrale idrica e locale tecnico;
B, edificio ex Casa del custode con annessi locali magazzino composto da cantina al piano interrato con accesso da scala esterna; disimpegno, camera e bagno al piano terreno; camera, locale di sgombero e bagno al piano primo
C, Terreni per una superficie complessiva di 136.261,00 mq
Per te la possibilità di avere un preventivo per il mutuo a condizioni vantaggiose con i nostri partner.
Ulteriori dettagli, foto degli interni, planimetrie e altre info, se disponibili, saranno consultabili previo appuntamento nella sede di TORINO con ANDREA che inoltre ti informerà sulle possibilità di aggiudicarti questo affare.
L'immobile pubblicato al momento è sottoposto a procedura di vendita legale; Gescom srl è specializzata nella ricerca e pianificazione di investimenti immobiliari secondo innovative strategie di acquisto. Contattaci subito potrai valutare assieme a un nostro tecnico canali distinti di acquisto dell'immobile, procedura di vendita diretta senza ricorrere all'asta (d.lgs. 149/2022) e ancora stralcio immobiliare. Le informazioni sopra riportate non sostituiscono l'avviso pubblicato dal Tribunale competente ne' l'integrale gestione da parte del delegato designato. Il testo e le specifiche indicate nella presente pagina sono generate automaticamente attraverso l'utilizzo di software e/o da A. I., Gescom srl invita a verificare le formazioni e i materiali multimediali sui canali ufficiali, declinando fin d'ora ogni responsabilità su eventuali errori o incongruenze.
Gescom Italia srl leader negli stralci immobiliari e nella consulenza tecnico legale, non si occupa di attività di intermediazione imm. di cui alla legge 39/89.
Cl. energ. da verificare.
Le foto pubblicate nel presente annuncio sono indicative e non esaustive della tipologia, qualità, consistenza e indicazione geografica dell'immobile.
CLASSE ENERGETICA: A
- Invia ad un amico
- Segnala abuso