vendita colonica/casale Santa Croce sull'Arno
Pubblicato il 17 novembre 2025 alle ore 23:16
























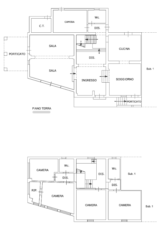
Tuffata in una collina che domina il paesaggio circostante, una maestosa casa colonica divisa in due unità immobiliari completamente indipendenti, ma che possono anche costituire un’unica residenza solo con l’apertura di un varco al piano terra e di uno al piano primo. L’unità immobiliare A è composta da ampio ingresso, doppia zona living con uscita verso il loggiato, sala da pranzo, cucina abitabile con accesso al giardino, studio o salottino lettura oppure camera ospiti e bagno. Al piano primo, a cui si accede attraverso una imponente scala, si sviluppano 4 camere da letto, di cui una con guardaroba privato, e due bagni. L’unità immobiliare B è così composta: ingresso su soggiorno, cucina abitabile con accesso all’esterno, bagno al piano terra; al primo piano, tre camere da letto e un bagno. Un forno, un ricovero attrezzi e una dispensa, sono in aderenza alla colonica. Arricchiscono la proprietà un fienile completamente da ristrutturare, una grande tettoia e un parco di oltre due ettari. La colonica è ristrutturata quasi totalmente, ovvero non è stato apposto il pavimento del primo piano, e gli impianti elettrico ed idrico devono essere completati, oltre alle porte di ingresso mancanti. Si precisa che l'indirizzo non identifica l'ubicazione esatta dell'immobile, ai fini della tutela della riservatezza del venditore.
- Invia ad un amico
- Segnala abuso