vendita colonica/casale Colle di Val d'Elsa
Pubblicato il 30 dicembre 2025 alle ore 23:20























Opportunità di INVESTIMENTO.
In vendita nel Comune di Colle di Val d’Elsa (SI), in tranquilla zona di campagna, porzione di casolare terratetto da ristrutturare, con ingresso indipendente e resede esclusivo.
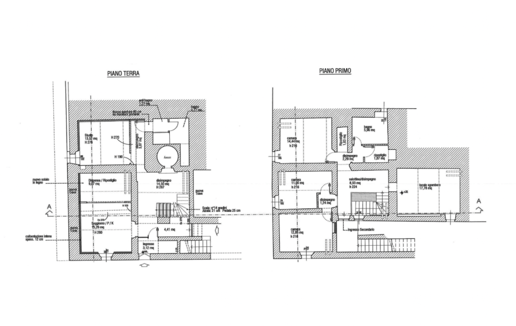
L’immobile, di circa 148 mq, si sviluppa su due livelli:
- Piano terra: ampio soggiorno con angolo cottura, studio e bagno con antibagno.
- Piano primo: tre camere, secondo bagno, due ripostigli e spazioso disimpegno.
Completa la proprietà un resede esclusivo con possibilità di adibirlo a posto auto.
Sono già stati eseguiti importanti lavori strutturali: rifacimento dei solai, del vespaio e dei massetti, oltre al consolidamento delle fondamenta. Restano da completare le finiture: pavimenti, infissi, impianto idraulico ed elettrico.
Ottima opportunità per investimento, grazie alla vicinanza (15 minuti) con rinomate località turistiche come Volterra, Siena e San Gimignano e a solo mezz'ora da Firenze.
Nella zona sono infatti già presenti strutture destinate all’affitto turistico breve.
Prezzo trattabile.
Classe energetica in fase di definizione.
- Invia ad un amico
- Segnala abuso