Vendita Casa singola Trino
Pubblicato il 25 ottobre 2025 alle ore 09:18
























 
							NUOVA PROPOSTA 
IMMOBILE DISPONIBILE
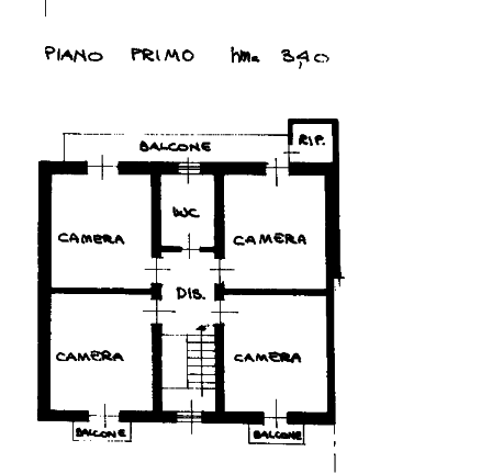
Casa a Trino (VC), in Via della Repubblica, disposta su due livelli. Al piano terra l'abitazione è composta da soggiorno, cucina, due camere, un bagno, locale caldaia, ripostiglio e cantina. Al piano primo si trovano quattro camere, un bagno, tre balconi e un ripostiglio. Completano la proprietà un garage di 17 mq, un magazzino e un ampio terreno di circa 2.430 mq. Soluzione ideale per chi cerca ampi spazi abitativi in un contesto tranquillo.
Per te la possibilità di avere un preventivo per il mutuo a condizioni vantaggiose con i nostri partner.
Ulteriori dettagli, foto degli interni, planimetrie e altre info, se disponibili, saranno consultabili previo appuntamento nella sede di ASTI con ANDREA che inoltre ti informerà sulle possibilità di aggiudicarti questo affare.
L'immobile pubblicato al momento è sottoposto a procedura di vendita legale; Gescom srl è specializzata nella ricerca e pianificazione di investimenti immobiliari secondo innovative strategie di acquisto. Contattaci subito potrai valutare assieme a un nostro tecnico canali distinti di acquisto dell'immobile, procedura di vendita diretta senza ricorrere all'asta (d.lgs. 149/2022) e ancora stralcio immobiliare. Le informazioni sopra riportate non sostituiscono l'avviso pubblicato dal Tribunale competente ne' l'integrale gestione da parte del delegato designato. Il testo e le specifiche indicate nella presente pagina sono generate automaticamente attraverso l'utilizzo di software e/o da A. I., Gescom srl invita a verificare le formazioni e i materiali multimediali sui canali ufficiali, declinando fin d'ora ogni responsabilità su eventuali errori o incongruenze.
Gescom Italia srl leader negli stralci immobiliari e nella consulenza tecnico legale, non si occupa di attività di intermediazione imm. di cui alla legge 39/89.
Cl. energ. da verificare.
Le foto pubblicate nel presente annuncio sono indicative e non esaustive della tipologia, qualità, consistenza e indicazione geografica dell'immobile.
CLASSE ENERGETICA: A
- Invia ad un amico
- Segnala abuso